TOP
|
特許
|
意匠
|
商標
意匠ウォッチ
Twitter
他の意匠を見る
発行日
2025-04-09
公報種別
意匠公報(S)
登録番号
1795643
登録日
2025-04-01
意匠に係る物品
見本帳
意匠分類
F3
-222(事務用紙製品、印刷物等)
出願番号
2024006550
出願日
2024-03-29
意匠権者
株式会社サンゲツ
代理人
フェリシテ弁理士法人
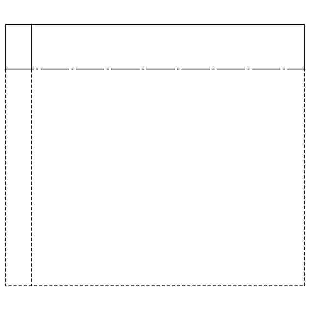
意匠に係る物品の説明
本願意匠に係る物品は、インテリア用品の見本帳である。かかる物品は、第1見本帳及び第2見本帳という異なる2つの見本帳を備えている。
意匠の説明
部分意匠として意匠登録を受けようとする部分を実線で、それ以外の部分を破線で表した。一点鎖線は、部分意匠として意匠登録を受けようとする部分とその他の部分との境界のみを示す線である。
この意匠をJ-PlatPat(特許庁公式サイト)で参照する
関連意匠
株式会社サンゲツ
間仕切り
6か月前
株式会社サンゲツ
巾木
10か月前
株式会社サンゲツ
幕板取付具
2か月前
株式会社サンゲツ
タイル
5か月前
株式会社サンゲツ
タイル
5か月前
株式会社サンゲツ
タイル
8か月前
株式会社サンゲツ
タイル
9か月前
株式会社サンゲツ
収納付きテーブル
4か月前
株式会社サンゲツ
幕板取付具
2か月前
株式会社サンゲツ
タイル
9か月前
株式会社サンゲツ
幕板取付具
2か月前
株式会社サンゲツ
タイル
9か月前
株式会社サンゲツ
壁紙
1か月前
株式会社サンゲツ
壁紙
1か月前
株式会社サンゲツ
壁紙
1か月前
株式会社サンゲツ
化粧シート
10か月前
株式会社サンゲツ
化粧シート
10か月前
株式会社サンゲツ
化粧シート
10か月前
株式会社サンゲツ
化粧シート
6か月前
株式会社サンゲツ
化粧シート
6か月前
株式会社サンゲツ
化粧シート
9日前
株式会社サンゲツ
化粧シート
10か月前
株式会社サンゲツ
化粧シート
5か月前
株式会社サンゲツ
化粧シート
4か月前
株式会社サンゲツ
化粧シート
4か月前
株式会社サンゲツ
化粧シート
4か月前
株式会社サンゲツ
化粧シート
9日前
株式会社サンゲツ
化粧シート
1か月前
株式会社サンゲツ
化粧シート
4か月前
株式会社サンゲツ
化粧シート
9日前
株式会社サンゲツ
化粧シート
1か月前
株式会社サンゲツ
化粧シート
1か月前
株式会社サンゲツ
化粧シート
4か月前
株式会社サンゲツ
化粧シート
3か月前
株式会社サンゲツ
化粧シート
3か月前
株式会社サンゲツ
化粧シート
4か月前
続きを見る
他の意匠を見る