TOP
|
特許
|
意匠
|
商標
意匠ウォッチ
Twitter
他の意匠を見る
発行日
2025-10-03
公報種別
意匠公報(S)
登録番号
1809873
登録日
2025-09-25
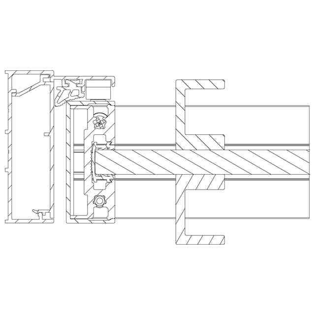
意匠に係る物品
建物扉用枠材
意匠分類
L7
-10(建物用構造材、枠材等)
出願番号
2025008010
出願日
2025-04-21
意匠権者
株式会社LIXIL
代理人
個人
,
個人
,
個人
,
個人
,
個人
意匠に係る物品の説明
意匠の説明
本物品は、長尺材であって、「斜視図」、「正面図」、「背面図」、「平面図」及び「底面図」において、2本の平行な二点鎖線は、中間省略の省略箇所を示すものである。
この意匠をJ-PlatPat(特許庁公式サイト)で参照する
関連意匠
株式会社LIXIL
1日前
株式会社LIXIL
7か月前
株式会社LIXIL
3か月前
株式会社LIXIL
3か月前
株式会社LIXIL
3か月前
株式会社LIXIL
3か月前
株式会社LIXIL
4か月前
株式会社LIXIL
6か月前
株式会社LIXIL
6か月前
株式会社LIXIL
6か月前
株式会社LIXIL
6か月前
株式会社LIXIL
1日前
株式会社LIXIL
7か月前
株式会社LIXIL
1か月前
株式会社LIXIL
7か月前
株式会社LIXIL
8か月前
株式会社LIXIL
9か月前
株式会社LIXIL
9か月前
株式会社LIXIL
9か月前
株式会社LIXIL
10か月前
株式会社LIXIL
10か月前
株式会社LIXIL
13か月前
株式会社LIXIL
14か月前
株式会社LIXIL
14か月前
株式会社LIXIL
19か月前
株式会社LIXIL
1か月前
株式会社LIXIL
7か月前
株式会社LIXIL
1日前
株式会社LIXIL
1日前
株式会社LIXIL
1日前
株式会社LIXIL
9日前
株式会社LIXIL
9日前
株式会社LIXIL
ベンチ
8か月前
株式会社LIXIL
トレーラー
10か月前
株式会社LIXIL
トレーラー
10か月前
株式会社LIXIL
施解錠操作用画像
15日前
続きを見る
他の意匠を見る