TOP
|
特許
|
意匠
|
商標
意匠ウォッチ
Twitter
他の意匠を見る
発行日
2025-01-06
公報種別
意匠公報(S)
登録番号
1788172
登録日
2024-12-20
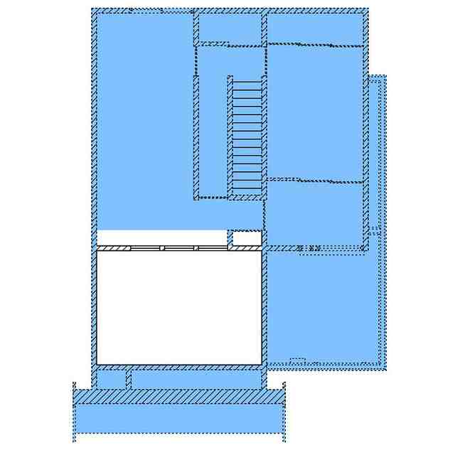
意匠に係る物品
住宅
意匠分類
L3
-21(組立て家屋、屋外装備品等)
出願番号
2024008173
出願日
2024-04-19
意匠権者
ミサワホーム株式会社
代理人
個人
意匠に係る物品の説明
本物品は、2階建ての住宅であり、屋根は勾配屋根とされている。勾配屋根の一部は、軒先が1階外壁の上端部付近まで伸びた状態となっており、勾配方向上端部側の下方には2階の部屋が設けられ、勾配方向下端部側の下方には、上記の1階外壁の屋内側に位置する1階の部屋が設けられている。1階の部屋の上部は2階まで吹き抜ける吹抜け空間とされており、その吹抜け空間が2階の部屋に隣接している。そして、1階の吹抜け空間と2階の部屋との間に位置する仕切壁には窓が設けられている。また、1階外壁にも窓が設けられ、仕切壁の窓と1階外壁の窓は、平面視において平行に配置されている。
意匠の説明
青色で着色された部分以外の部分が、意匠登録を受けようとする部分である。縮小A-A線断面図、縮小B-B線断面図、C-C線断面図、D-D線断面図、E-E線断面図、F-F線断面図、G-G線断面図、H-H線断面図において実線で表した部分が、意匠登録を受けようとする部分である。透明部分を示す参考正面図、透明部分を示す参考F-F線断面図において朱色で着色された部分は透明である。
この意匠をJ-PlatPat(特許庁公式サイト)で参照する
関連意匠
ミサワホーム株式会社
10か月前
ミサワホーム株式会社
10か月前
ミサワホーム株式会社
イメージ生成用画像
3か月前
ミサワホーム株式会社
建築用桟材
3か月前
ミサワホーム株式会社
トレーラーハウス
1日前
ミサワホーム株式会社
トレーラーハウス
1日前
ミサワホーム株式会社
トレーラーハウス
1日前
ミサワホーム株式会社
トレーラーハウス
1日前
ミサワホーム株式会社
トレーラーハウス
1か月前
ミサワホーム株式会社
一組の運輸機器セット
5か月前
ミサワホーム株式会社
住宅
9か月前
ミサワホーム株式会社
住宅
6か月前
ミサワホーム株式会社
住宅
9か月前
ミサワホーム株式会社
住宅
9か月前
ミサワホーム株式会社
建物用枠付き戸
8か月前
ミサワホーム株式会社
建築用パネル材
1か月前
ミサワホーム株式会社
住宅の内装
9か月前
ミサワホーム株式会社
住宅の内装
9か月前
ミサワホーム株式会社
見本帳用板紙
1か月前
ミサワホーム株式会社
住宅の内装
9か月前
ミサワホーム株式会社
住宅の内装
9か月前
ミサワホーム株式会社
住宅の内装
9か月前
ミサワホーム株式会社
住宅の内装
9か月前
ミサワホーム株式会社
安全掲示板用シート
6か月前
ミサワホーム株式会社
シート状掲示物収納ケース
8か月前
株式会社LIXIL
門
22日前
株式会社LIXIL
門
22日前
株式会社LIXIL
門
22日前
株式会社LIXIL
門
22日前
株式会社大林組
柵
1か月前
個人
住宅
9か月前
積水ハウス株式会社
住宅
3か月前
旭化成ホームズ株式会社
住宅
1か月前
YKK AP株式会社
門塀
1か月前
YKK AP株式会社
門塀
1か月前
石友ホーム株式会社
住宅
9か月前
続きを見る
他の意匠を見る