TOP
|
特許
|
意匠
|
商標
意匠ウォッチ
Twitter
他の意匠を見る
発行日
2025-02-06
公報種別
意匠公報(S)
登録番号
1790713
登録日
2025-01-29
意匠に係る物品
浴槽用循環具
意匠分類
D5
-31900(厨房設備用品及び衛生設備用品)
出願番号
2024017063
出願日
2020-07-13
意匠権者
株式会社オンダ製作所
,
ONDA MFG.CO.,LTD.
代理人
個人
,
個人
意匠に係る物品の説明
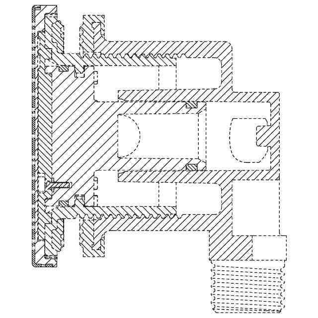
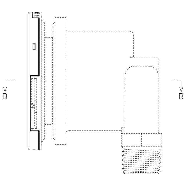
この意匠に係る物品は、浴槽の側壁に取り付けられ、浴槽と加熱器との間で湯水を循環させる浴槽用循環具である。本願意匠において意匠登録を受けようとする部分は、内側筒体に組み付けられ、浴槽の内側に配置されるフィルターカバーの表面部分である。
意匠の説明
意匠登録を受けようとする部分を実線で、それ以外の部分を破線で表した。各斜視図に表れる途切れた線は、立体表面の形状を表すためのものである。a-a’部の拡大A-A断面図は、左に90度回転した状態で表している。登録を受けようとする部分を示す参考図1,2において、薄墨を施した部分は意匠登録を受けようとする部分である。
この意匠をJ-PlatPat(特許庁公式サイト)で参照する
関連意匠
株式会社オンダ製作所
配管用マーキング治具
6か月前
株式会社オンダ製作所
部屋の内装
9か月前
株式会社オンダ製作所
部屋の内装
9か月前
株式会社オンダ製作所
部屋の内装
9か月前
株式会社オンダ製作所
管継手
5か月前
株式会社オンダ製作所
浴槽用循環具
2か月前
株式会社オンダ製作所
浴槽用循環具
8か月前
株式会社オンダ製作所
浴槽用循環具
8か月前
株式会社オンダ製作所
浴槽用循環具
8か月前
株式会社オンダ製作所
浴槽用循環具
8か月前
株式会社オンダ製作所
浴槽用循環具
2か月前
株式会社オンダ製作所
管継手取付板
9か月前
株式会社オンダ製作所
自在管継手
5か月前
株式会社オンダ製作所
配管カバー
5か月前
株式会社オンダ製作所
配管カバー
5か月前
株式会社オンダ製作所
浴槽用循環具
2か月前
株式会社オンダ製作所
浴槽用循環具
2か月前
株式会社オンダ製作所
浴槽用循環具
2か月前
株式会社オンダ製作所
配管固定用サドル
6か月前
株式会社オンダ製作所
スペーサリング
5か月前
株式会社オンダ製作所
管継手保護カバー
4か月前
株式会社オンダ製作所
管継手保護カバー
4か月前
株式会社オンダ製作所
管継手用アダプター
5か月前
株式会社オンダ製作所
浴槽用循環具用検査治具
6か月前
株式会社オンダ製作所
樹脂管用着脱式継ぎ手
5か月前
株式会社オンダ製作所
樹脂管用着脱式継ぎ手
5か月前
株式会社長谷工コーポレーション
水道用メータユニット
6か月前
株式会社長谷工コーポレーション
水道用メータユニット
6か月前
TOTO株式会社
浴槽
9か月前
株式会社S.P.M
浴槽
8か月前
株式会社S.P.M
浴槽
11か月前
株式会社S.P.M
浴槽
2か月前
株式会社S.P.M
浴槽
2か月前
クリナップ株式会社
浴槽
2か月前
クリナップ株式会社
浴槽
2か月前
クリナップ株式会社
浴槽
2か月前
続きを見る
他の意匠を見る