TOP
|
特許
|
意匠
|
商標
意匠ウォッチ
Twitter
他の意匠を見る
発行日
2025-05-19
公報種別
意匠公報(S)
登録番号
1798730
登録日
2025-05-09
意匠に係る物品
住宅
意匠分類
L3
-21(組立て家屋、屋外装備品等)
出願番号
2024016753
出願日
2024-08-09
意匠権者
積水ハウス株式会社
代理人
弁理士法人藤本パートナーズ
意匠に係る物品の説明
意匠の説明
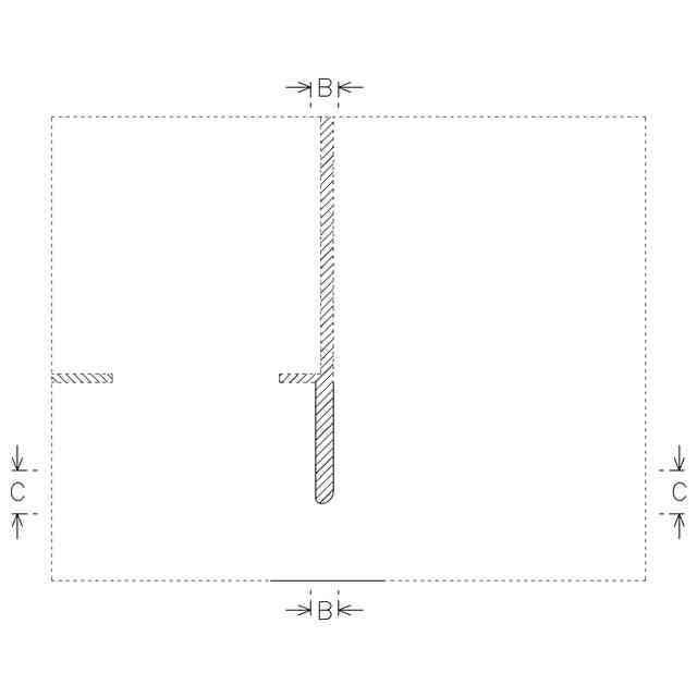
端面図を除く各図において薄墨を施した部分を除く部分、及び、端面図において実線であらわした部分が、意匠登録を受けようとする部分である。斜視図、端面図、断面図及び拡大図を含めて意匠登録を受けようとする部分を特定している。この意匠登録出願の意匠は建築物内の位置を特定しない部屋の内部であり、内部の形状等を表すために、斜視図では、天井及び手前側の壁を除いた状態で、正面図、背面図、右側面図及び左側面図では、向かい合う面の壁を除いた状態で、平面図では、天井を除いた状態であらわしている。参考平面図においてあらわした矢印の位置と向きは、使用状態を示す参考図と、視点の位置と向きにそれぞれ対応したものである。
この意匠をJ-PlatPat(特許庁公式サイト)で参照する
関連意匠
積水ハウス株式会社
8か月前
積水ハウス株式会社
8か月前
積水ハウス株式会社
スツール
1か月前
積水ハウス株式会社
ソファー
1か月前
積水ハウス株式会社
げた箱
6か月前
積水ハウス株式会社
住宅
6か月前
積水ハウス株式会社
住宅
6か月前
積水ハウス株式会社
住宅
6か月前
積水ハウス株式会社
住宅
6か月前
積水ハウス株式会社
住宅
7か月前
積水ハウス株式会社
住宅
7か月前
積水ハウス株式会社
住宅
7か月前
積水ハウス株式会社
住宅
7か月前
積水ハウス株式会社
住宅
4日前
積水ハウス株式会社
住宅
8か月前
積水ハウス株式会社
住宅
8か月前
積水ハウス株式会社
住宅
8か月前
積水ハウス株式会社
住宅
8か月前
積水ハウス株式会社
住宅
8か月前
積水ハウス株式会社
住宅
8か月前
積水ハウス株式会社
住宅
8か月前
積水ハウス株式会社
住宅
12か月前
積水ハウス株式会社
住宅
12か月前
積水ハウス株式会社
住宅
12か月前
積水ハウス株式会社
住宅
8か月前
積水ハウス株式会社
住宅
12か月前
積水ハウス株式会社
住宅
3か月前
積水ハウス株式会社
住宅
3か月前
積水ハウス株式会社
住宅
2か月前
積水ハウス株式会社
住宅
2か月前
積水ハウス株式会社
住宅
5か月前
積水ハウス株式会社
建築用外壁板
3か月前
積水ハウス株式会社
住宅
4か月前
積水ハウス株式会社
住宅
4か月前
積水ハウス株式会社
住宅
3か月前
積水ハウス株式会社
住宅
3か月前
続きを見る
他の意匠を見る