TOP
|
特許
|
意匠
|
商標
意匠ウォッチ
Twitter
他の意匠を見る
発行日
2025-05-26
公報種別
意匠公報(S)
登録番号
1799493
登録日
2025-05-16
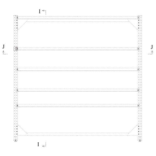
意匠に係る物品
整理棚
意匠分類
D6
-513(室内整理用家具・用具)
出願番号
2025000864
出願日
2025-01-17
意匠権者
株式会社乃村工藝社
,
小松ウオール工業株式会社
代理人
個人
,
個人
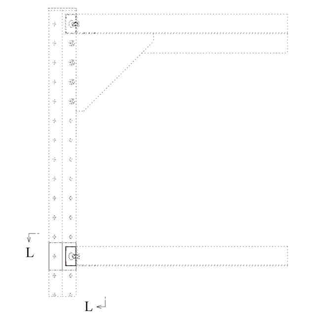
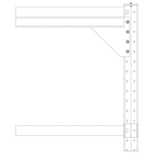
意匠に係る物品の説明
本物品は棚受けの位置を変更可能な整理棚で、「参考部分斜視図1」及び「参考部分斜視図2」に示すように、棚受けの両端を支柱に固定して使用する。本物品は正面図において、縦約2.4メートル、横約2.4メートルの大きさである。本物品は「使用状態を示す参考図1」及び「使用状態を示す参考図2」に示すように、前後又は左右に複数連結して使用することができる。複数の本物品を連結する際には、隣り合う本物品の支柱の孔に連結金具を取り付け固定する。
意匠の説明
実線で表した部分が意匠登録を受けようとする部分である。一点鎖線は意匠登録を受けようとする部分とそれ以外の部分との境界線のみを表す。
意匠ウォッチbot のツイートを見る
この意匠をJ-PlatPat(特許庁公式サイト)で参照する
関連意匠
株式会社乃村工藝社
整理棚
5か月前
株式会社乃村工藝社
整理棚
5か月前
株式会社乃村工藝社
整理棚
5か月前
株式会社乃村工藝社
整理棚
5か月前
三洋工業株式会社
床材支持具
8か月前
三洋工業株式会社
床パネル受け具
4か月前
三菱地所株式会社
一組の土木建築用品セット
5か月前
三菱地所株式会社
一組の土木建築用品セット
6か月前
三菱地所株式会社
フリーアクセスフロアパネル
5か月前
三菱地所株式会社
フリーアクセスフロアパネル
6か月前
株式会社イトーキ
棚
10か月前
株式会社カインズ
棚
5か月前
株式会社カインズ
棚
4か月前
株式会社カインズ
棚
4か月前
イデア 株式会社
棚
8か月前
株式会社イトーキ
棚
6か月前
株式会社イトーキ
棚
6か月前
株式会社イクロス
棚
5か月前
株式会社カインズ
棚
10か月前
アンブラ エルエルシー
棚
2か月前
株式会社カインズ
棚
7か月前
株式会社カインズ
棚
10か月前
株式会社イトーキ
棚
10か月前
株式会社カインズ
棚
10か月前
株式会社カインズ
棚
10か月前
株式会社カインズ
棚
4か月前
株式会社カインズ
棚
4か月前
株式会社カインズ
棚
4か月前
株式会社カインズ
棚
10か月前
株式会社カインズ
棚
10か月前
株式会社カインズ
棚
5か月前
株式会社エトウ
本棚
5か月前
景寧美格科技服務有限公司
戸棚
11か月前
株式会社エトウ
本棚
5か月前
景寧美格科技服務有限公司
戸棚
9か月前
筑波国際交易有限会社
花台
3か月前
続きを見る
他の意匠を見る