TOP
|
特許
|
意匠
|
商標
意匠ウォッチ
Twitter
他の意匠を見る
発行日
2025-05-27
公報種別
意匠公報(S)
登録番号
1799568
登録日
2025-05-19
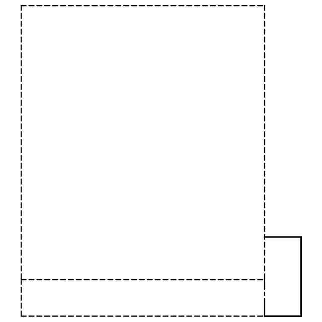
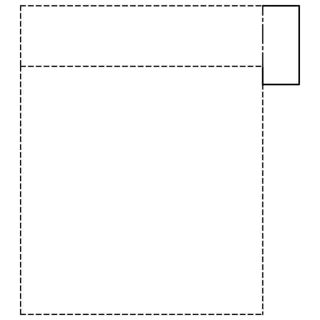
意匠に係る物品
目地材
意匠分類
L6
-52(建築用内外装材)
出願番号
2024021176
出願日
2024-10-11
意匠権者
株式会社長谷工コーポレーション
,
株式会社ロンビックジャパン
代理人
個人
意匠に係る物品の説明
本物品は、鉛直方向に向けて構築されるコンクリート構造体に対して、水平方向に形成されるスリットを埋めるための目地材である。
意匠の説明
実線で表した部分が部分意匠として意匠登録を受けようとする部分である。一点鎖線は、部分意匠として意匠登録を受けようとする部分と、その他の部分との境界のみを示す線である。
この意匠をJ-PlatPat(特許庁公式サイト)で参照する
関連意匠
株式会社長谷工コーポレーション
情報表示用画像
9か月前
株式会社長谷工コーポレーション
情報表示用画像
9か月前
株式会社長谷工コーポレーション
目地材
4か月前
株式会社長谷工コーポレーション
目地材
4か月前
株式会社長谷工コーポレーション
手すり支持具
10か月前
株式会社長谷工コーポレーション
住宅
29日前
株式会社長谷工コーポレーション
門柱
7か月前
株式会社長谷工コーポレーション
門柱
7か月前
株式会社長谷工コーポレーション
集合住宅
9か月前
株式会社長谷工コーポレーション
鉄筋受け用スペーサー
3か月前
株式会社長谷工コーポレーション
鉄筋受け用スペーサー
3か月前
株式会社長谷工コーポレーション
住宅の内装
3か月前
株式会社長谷工コーポレーション
水道用メータユニット
5か月前
株式会社長谷工コーポレーション
水道用メータユニット
5か月前
株式会社長谷工コーポレーション
宅配ボックス
7か月前
伊山瓦協業組合
瓦
1か月前
ケイミュー株式会社
壁板
8日前
ケイミュー株式会社
壁板
3か月前
株式会社リムジンインタナショナル
床材
10か月前
株式会社リムジンインタナショナル
床材
10か月前
ケイミュー株式会社
壁板
3か月前
ケイミュー株式会社
壁板
3か月前
ケイミュー株式会社
壁板
3か月前
ケイミュー株式会社
壁板
3か月前
ケイミュー株式会社
壁板
3か月前
ケイミュー株式会社
壁板
3か月前
ケイミュー株式会社
壁板
3か月前
株式会社ウッドワン
巾木
10か月前
株式会社ウッドワン
巾木
10か月前
株式会社ウッドワン
巾木
10か月前
株式会社ウッドワン
巾木
10か月前
株式会社サンゲツ
巾木
10か月前
株式会社ウッドワン
巾木
10か月前
株式会社ウッドワン
巾木
10か月前
株式会社ウッドワン
巾木
10か月前
株式会社ウッドワン
巾木
10か月前
続きを見る
他の意匠を見る