TOP
|
特許
|
意匠
|
商標
意匠ウォッチ
Twitter
他の意匠を見る
発行日
2025-08-21
公報種別
意匠公報(S)
登録番号
1806619
登録日
2025-08-13
意匠に係る物品
住宅
意匠分類
L3
-21(組立て家屋、屋外装備品等)
出願番号
2024018789
出願日
2024-09-11
意匠権者
旭化成ホームズ株式会社
,
Asahi Kasei Homes Corporation
代理人
個人
,
個人
,
個人
意匠に係る物品の説明
意匠の説明
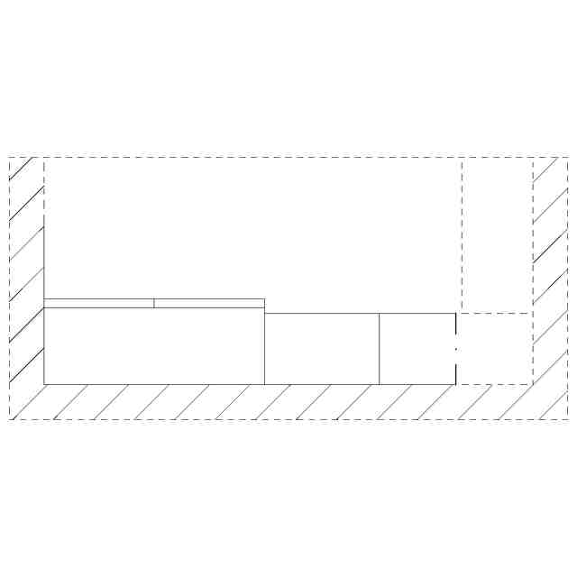
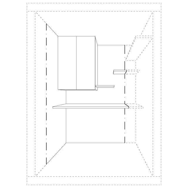
本件意匠は建築物内の位置を特定しない部屋の内部であって、カウンター、ペット昇降用ステップ及び吊戸棚を設けた壁部に係る。実線で表した部分が、意匠登録を受けようとする部分である。一点鎖線は、意匠登録を受けようとする部分とその他の部分との境界のみを示す線である。平面図は、天井を除いた状態にて表す。土地の定着物につき底面図を省略する。左側面図は、意匠登録を受けようとする部分が表われないため省略する。
意匠ウォッチbot のツイートを見る
この意匠をJ-PlatPat(特許庁公式サイト)で参照する
関連意匠
旭化成ホームズ株式会社
建築用壁材
8か月前
旭化成ホームズ株式会社
住宅
11か月前
旭化成ホームズ株式会社
住宅
11か月前
旭化成ホームズ株式会社
住宅
11か月前
旭化成ホームズ株式会社
住宅
11か月前
旭化成ホームズ株式会社
住宅
11か月前
旭化成ホームズ株式会社
住宅
11か月前
旭化成ホームズ株式会社
住宅
11か月前
旭化成ホームズ株式会社
住宅
27日前
旭化成ホームズ株式会社
住宅
11か月前
旭化成ホームズ株式会社
住宅
12か月前
旭化成ホームズ株式会社
住宅
12か月前
旭化成ホームズ株式会社
住宅
12か月前
旭化成ホームズ株式会社
住宅
12か月前
旭化成ホームズ株式会社
住宅
12か月前
旭化成ホームズ株式会社
住宅
12か月前
旭化成ホームズ株式会社
住宅
11か月前
旭化成ホームズ株式会社
住宅
11か月前
旭化成ホームズ株式会社
住宅
27日前
旭化成ホームズ株式会社
住宅
10か月前
旭化成ホームズ株式会社
住宅
10か月前
旭化成ホームズ株式会社
住宅
10か月前
旭化成ホームズ株式会社
住宅
10か月前
旭化成ホームズ株式会社
住宅
10か月前
旭化成ホームズ株式会社
住宅
10か月前
旭化成ホームズ株式会社
住宅
10か月前
旭化成ホームズ株式会社
住宅
9か月前
旭化成ホームズ株式会社
住宅
8か月前
旭化成ホームズ株式会社
住宅
7か月前
旭化成ホームズ株式会社
住宅
7か月前
旭化成ホームズ株式会社
住宅
6か月前
旭化成ホームズ株式会社
住宅
5か月前
旭化成ホームズ株式会社
住宅
1か月前
旭化成建材株式会社
組立式簡易ブース用パネル
7か月前
株式会社大林組
柵
1か月前
株式会社LIXIL
門
18日前
続きを見る
他の意匠を見る