TOP
|
特許
|
意匠
|
商標
意匠ウォッチ
Twitter
他の意匠を見る
発行日
2025-09-04
公報種別
意匠公報(S)
登録番号
1807794
登録日
2025-08-27
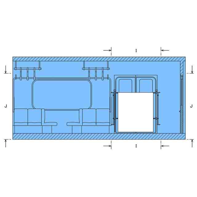
意匠に係る物品
車両の内装
意匠分類
G2
-11(車両)
出願番号
2023022477
出願日
2023-10-27
意匠権者
東日本旅客鉄道株式会社
代理人
弁理士法人光陽国際特許事務所
意匠に係る物品の説明
本物品は、旅客車に用いられる車両の内装であって、先頭または最後尾の車両の、運転室に隣接するスペースを、部分的に遮蔽できる車両の内装である。本物品を用いることで、旅客車に同乗した乗客から、本物品で遮蔽したスペース内の荷物を目隠しでき、かつ、当該スペースへの立ち入りを防ぐことができる。本物品を構成するシート状部材のうち、ドア側の一部を取り外しできるので、車両停車時に、開いたドア側から荷物を載せたり、降ろしたりすることもできる。さらに、本物品は、ドア側又は運転室側からの採光も部分的に確保できるようになっている。
意匠の説明
図面において、青色で着色された部分以外の部分が、意匠登録を受けようとする部分である。透明部分を示す「本物品を取り付ける前の状態を示す参考斜視図」、透明部分を示す「使用状態を示す参考斜視図1」、透明部分を示す「使用状態を示す参考斜視図2」、及び、透明部分を示す「使用状態を示す参考斜視図3」において、赤色を施した部分は透明である。
意匠ウォッチbot のツイートを見る
この意匠をJ-PlatPat(特許庁公式サイト)で参照する
関連意匠
東日本旅客鉄道株式会社
旅客車
7か月前
東日本旅客鉄道株式会社
車両の内装
1か月前
東日本旅客鉄道株式会社
電車おもちゃ
4か月前
東日本旅客鉄道株式会社
基礎構造物
8か月前
東日本旅客鉄道株式会社
基礎構造物
8か月前
東日本旅客鉄道株式会社
基礎構造物
8か月前
東日本旅客鉄道株式会社
H形鋼用補強材
8か月前
東日本旅客鉄道株式会社
H形鋼用補強材
8か月前
東日本旅客鉄道株式会社
可動ブラケット用地絡防止器具
3か月前
大阪市高速電気軌道株式会社
バス
28日前
株式会社高橋仮設
台車
7か月前
株式会社コメリ
台車
8か月前
個人
台車
4か月前
株式会社 日東
台車
8か月前
株式会社ブンシジャパン
台車
8か月前
株式会社カインズ
台車
2か月前
株式会社トライアルカンパニー
バス
1か月前
いすゞ自動車株式会社
バス
3か月前
学校法人千葉工業大学
車両
9か月前
株式会社高橋仮設
台車
7か月前
いすゞ自動車株式会社
バス
3か月前
大阪市高速電気軌道株式会社
バス
28日前
株式会社カインズ
台車
1か月前
大阪市高速電気軌道株式会社
バス
28日前
株式会社カインズ
台車
1か月前
株式会社 日東
台車
6か月前
株式会社日立製作所
旅客車
5か月前
FERRARI S.p.A.
Car
2か月前
FERRARI S.p.A.
Car
2か月前
FERRARI S.p.A.
Car
2か月前
FERRARI S.p.A.
Car
2か月前
武義斯米諾工貿有限公司
自転車
10か月前
深せん市星途創新科技有限公司
自転車
10か月前
FERRARI S.p.A.
Car
11か月前
槌屋ヤック株式会社
車高灯
1か月前
株式会社小松製作所
運搬車
11か月前
続きを見る
他の意匠を見る