TOP
|
特許
|
意匠
|
商標
意匠ウォッチ
Twitter
他の意匠を見る
発行日
2025-09-22
公報種別
意匠公報(S)
登録番号
1808880
登録日
2025-09-11
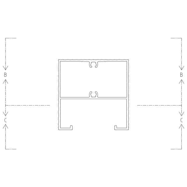
意匠に係る物品
建築用ルーバー材
意匠分類
L6
-03(建築用内外装材)
出願番号
2024026118
出願日
2024-12-18
意匠権者
理研軽金属工業株式会社
代理人
意匠に係る物品の説明
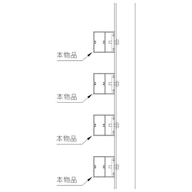
本物品は、建築用ルーバー材として使用するものである。本物品は、所定の寸法に切断され、建築物の天井、外壁、内壁、間仕切り、外階段、外周、屋上塔屋、および空調設備周り等に、予め形成されている下地材に止具を介して、本物品を並列状に取付け、格子面とする。本物品の化粧面には、凹凸を有する柾目調の木目模様が施されている。
意匠の説明
背面図は正面図と対称にあらわれるため省略する。左側面図は右側面図と対称にあらわれるため省略する。この意匠は、右側面図において左右に連続するものである。
この意匠をJ-PlatPat(特許庁公式サイト)で参照する
関連意匠
理研軽金属工業株式会社
2か月前
理研軽金属工業株式会社
2か月前
理研軽金属工業株式会社
建物用庇
6か月前
理研軽金属工業株式会社
建物用庇
6か月前
理研軽金属工業株式会社
建物用庇材
6か月前
理研軽金属工業株式会社
庇用支持材
8か月前
理研軽金属工業株式会社
庇用支持材
8か月前
理研軽金属工業株式会社
庇用支持材
8か月前
理研軽金属工業株式会社
庇用支持材
8か月前
理研軽金属工業株式会社
庇用支持材
8か月前
理研軽金属工業株式会社
庇用支持材
8か月前
理研軽金属工業株式会社
建物用庇材
6か月前
理研軽金属工業株式会社
建物用庇材
6か月前
理研軽金属工業株式会社
庇用支持材
6か月前
理研軽金属工業株式会社
庇用支持材
8か月前
理研軽金属工業株式会社
建物用庇材
6か月前
理研軽金属工業株式会社
建物用庇材
4か月前
理研軽金属工業株式会社
庇用支持材
8か月前
理研軽金属工業株式会社
建築用ルーバー材
11か月前
理研軽金属工業株式会社
建築用ルーバー材
11か月前
理研軽金属工業株式会社
建築用ルーバー材
6か月前
理研軽金属工業株式会社
建築用ルーバー材
6か月前
理研軽金属工業株式会社
建築用ルーバー材
19日前
理研軽金属工業株式会社
建築用ルーバー材
19日前
理研軽金属工業株式会社
建築用ルーバー材
6か月前
理研軽金属工業株式会社
建築用ルーバー材
2か月前
理研軽金属工業株式会社
建築用ルーバー材
2か月前
理研軽金属工業株式会社
建築用ルーバー材
2か月前
理研軽金属工業株式会社
建築用ルーバー材
6か月前
株式会社エース・ウォーター
冷暖房用輻射パネル
11か月前
株式会社エース・ウォーター
冷暖房用輻射パネル
11か月前
伊山瓦協業組合
瓦
1か月前
ケイミュー株式会社
壁板
9日前
ケイミュー株式会社
壁板
3か月前
株式会社リムジンインタナショナル
床材
10か月前
株式会社リムジンインタナショナル
床材
10か月前
続きを見る
他の意匠を見る