TOP
|
特許
|
意匠
|
商標
意匠ウォッチ
Twitter
他の意匠を見る
発行日
2025-10-02
公報種別
意匠公報(S)
登録番号
1809840
登録日
2025-09-24
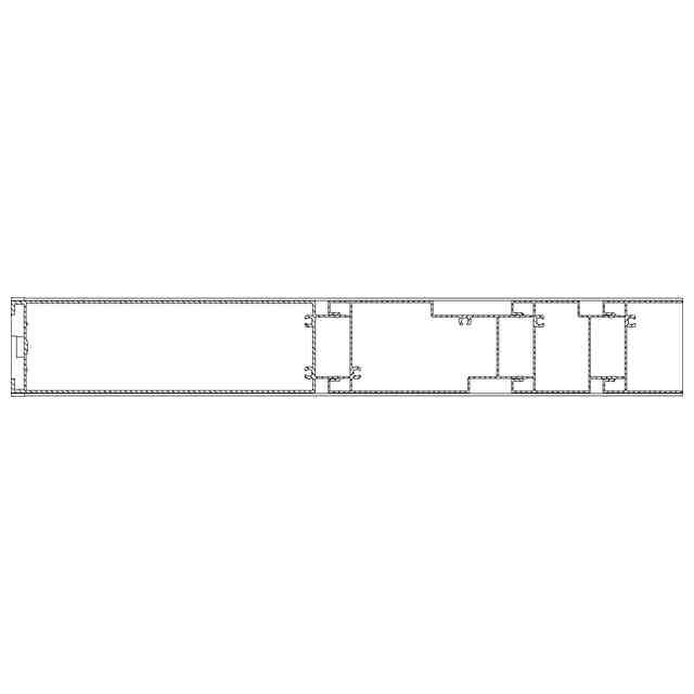
意匠に係る物品
門扉
意匠分類
L3
-5100(組立て家屋、屋外装備品等)
出願番号
2024024693
出願日
2024-11-28
意匠権者
YKK AP株式会社
代理人
意匠に係る物品の説明
意匠の説明
実線で表わされた部分が、部分意匠として意匠登録を受けようとする部分である。
この意匠をJ-PlatPat(特許庁公式サイト)で参照する
関連意匠
YKK AP株式会社
4か月前
YKK AP株式会社
見切材
1か月前
YKK AP株式会社
外構壁
3か月前
YKK AP株式会社
屋根材
6か月前
YKK AP株式会社
屋根材
6か月前
YKK AP株式会社
外構壁
3か月前
YKK AP株式会社
外構壁
3か月前
YKK AP株式会社
外構壁
3か月前
YKK AP株式会社
建物用窓
9か月前
YKK AP株式会社
建物用戸
8か月前
YKK AP株式会社
建物用窓
9か月前
YKK AP株式会社
建物用窓
9か月前
YKK AP株式会社
建物用窓
9か月前
YKK AP株式会社
建物用戸
8か月前
YKK AP株式会社
建物用窓
9か月前
YKK AP株式会社
建物用戸
7か月前
YKK AP株式会社
建物用戸
7か月前
YKK AP株式会社
建物用戸
8か月前
YKK AP株式会社
枠付き折戸
7か月前
YKK AP株式会社
枠付き折戸
7か月前
YKK AP株式会社
枠付きドア
8か月前
YKK AP株式会社
枠付き引戸
8か月前
YKK AP株式会社
枠付き引戸
7か月前
YKK AP株式会社
枠付きドア
7か月前
YKK AP株式会社
換気框
6か月前
YKK AP株式会社
枠付き折戸
9か月前
YKK AP株式会社
枠付き折戸
9か月前
YKK AP株式会社
枠付き折戸
9か月前
YKK AP株式会社
建物用外壁板
9か月前
YKK AP株式会社
建物用外壁板
9か月前
YKK AP株式会社
ドア付きパネル
19日前
YKK AP株式会社
ドア用縦枠
7か月前
YKK AP株式会社
建具用縦框
6か月前
YKK AP株式会社
建具用上枠
6か月前
YKK AP株式会社
建具用縦枠
6か月前
YKK AP株式会社
建具用縦枠
6か月前
続きを見る
他の意匠を見る