TOP
|
特許
|
意匠
|
商標
意匠ウォッチ
Twitter
他の意匠を見る
発行日
2025-10-03
公報種別
意匠公報(S)
登録番号
1809911
登録日
2025-09-25
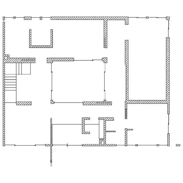
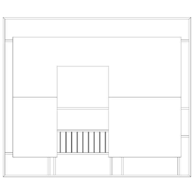
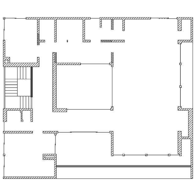
意匠に係る物品
住宅
意匠分類
L3
-21(組立て家屋、屋外装備品等)
出願番号
2025006479
出願日
2025-03-31
意匠権者
住友林業株式会社
代理人
弁理士法人翔和国際特許事務所
意匠に係る物品の説明
本願意匠に係る物品は、1階部分の庇と、2階部分に設置されたバルコニーの屋根と、該庇及び該屋根を該バルコニーの左右方向両端側で連結する一対の壁と、によって形成された正面視がロの字形状のボックス型の外壁を2階部分に備えた木造の住宅である。本願意匠に係る住宅は、前記ボックス型の外壁が浮遊感のある印象を与えるデザインとなっている。
意匠の説明
A-A線参考断面図、B-B線参考断面図、C-C線参考断面図、及びD-D線参考断面図、においては、内部構造を省略している。
意匠ウォッチbot のツイートを見る
この意匠をJ-PlatPat(特許庁公式サイト)で参照する
関連意匠
住友林業株式会社
住宅
3日前
住友林業株式会社
住宅
3か月前
住友林業株式会社
住宅
3か月前
住友林業株式会社
住宅
3か月前
住友林業株式会社
住宅
3か月前
住友林業株式会社
住宅
3か月前
住友林業株式会社
住宅
4か月前
住友林業株式会社
住宅
4か月前
住友林業株式会社
住宅
11か月前
住友林業株式会社
ホールダウン金物
7か月前
住友林業株式会社
建物用防水部材
26日前
住友林業株式会社
オフィス
8か月前
住友林業株式会社
オフィス
8か月前
株式会社LIXIL
門
17日前
株式会社大林組
柵
1か月前
株式会社LIXIL
門
17日前
株式会社LIXIL
門
17日前
株式会社LIXIL
門
17日前
YKK AP株式会社
門扉
3か月前
株式会社丸豊建硝
手摺
4か月前
トヨタホーム株式会社
住宅
6か月前
住友林業株式会社
住宅
4か月前
株式会社LIXIL
門扉
6か月前
住友林業株式会社
住宅
4か月前
旭化成ホームズ株式会社
住宅
10か月前
三協立山株式会社
門扉
6か月前
株式会社大林組
病院
3か月前
石友ホーム株式会社
住宅
9か月前
トクラス株式会社
浴室
8か月前
個人
鳥居
7か月前
個人
住宅
7か月前
旭化成ホームズ株式会社
住宅
10か月前
旭化成ホームズ株式会社
住宅
10か月前
積水ハウス株式会社
住宅
8か月前
旭化成ホームズ株式会社
住宅
6か月前
旭化成ホームズ株式会社
住宅
11か月前
続きを見る
他の意匠を見る