TOP
|
特許
|
意匠
|
商標
意匠ウォッチ
Twitter
他の意匠を見る
発行日
2024-10-08
公報種別
意匠公報(S)
登録番号
1696745
登録日
2021-09-21
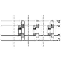
意匠に係る物品
基礎杭
意匠分類
L2
-21100(土木構造物及び土木用品)
出願番号
2020006160
出願日
2020-03-31
意匠権者
ジャパンパイル株式会社
代理人
個人
,
個人
,
個人
意匠に係る物品の説明
本物品は、「使用状態の一例を示す参考図」に示すとおり、地盤に掘削された杭穴に他の基礎杭と連結して埋設される既製杭であり、環状の節部を有する。
意匠の説明
背面図は正面図と同一である。底面図は平面図と対称である。左側面図は右側面図と同一である。
意匠ウォッチbot のツイートを見る
この意匠をJ-PlatPat(特許庁公式サイト)で参照する
関連意匠
ジャパンパイル株式会社
地盤掘削状態確認用画像
12か月前
ジャパンパイル株式会社
基礎杭
12か月前
ジャパンパイル株式会社
基礎杭
12か月前
ジャパンパイル株式会社
既製杭の傾斜測定装置
1か月前
ジャパンパイル株式会社
既製杭の傾斜測定装置
1か月前
株式会社トーキンオール
鋼管
4か月前
ジャパンパイル株式会社
基礎杭
12か月前
四国プランニング株式会社
止水板
9か月前
株式会社サンゲツ
排水具
6か月前
株式会社サンゲツ
排水具
6か月前
株式会社大林組
植栽帯
2か月前
株式会社大林組
藻場礁
7か月前
株式会社大林組
藻場礁
7か月前
株式会社カクマル
境界杭
8か月前
共和ハーモテック株式会社
かご枠
8か月前
フジ鋼業株式会社
止水体
5か月前
四国プランニング株式会社
止水板
9か月前
個人
集水桝
10か月前
昭和機械商事株式会社
布団篭
10か月前
理研興業株式会社
防雪板
5か月前
理研興業株式会社
防雪板
5か月前
理研興業株式会社
防雪板
9か月前
理研興業株式会社
防雪板
9か月前
理研興業株式会社
防雪板
9か月前
理研興業株式会社
防雪板
9か月前
理研興業株式会社
防雪板
9か月前
ジャパンパイル株式会社
基礎杭
12か月前
A&Kホンシュウ株式会社
側溝用蓋
5か月前
カツデン株式会社
車止め具
2か月前
日本植生株式会社
植生マット
3か月前
日本植生株式会社
植生シート
3か月前
揖斐川工業株式会社
積ブロック
4か月前
東日本旅客鉄道株式会社
基礎構造物
8か月前
株式会社サンゲツ
植栽設置棚
5か月前
東日本旅客鉄道株式会社
基礎構造物
8か月前
東日本旅客鉄道株式会社
基礎構造物
8か月前
続きを見る
他の意匠を見る