TOP
|
特許
|
意匠
|
商標
意匠ウォッチ
Twitter
他の意匠を見る
発行日
2025-08-01
公報種別
意匠公報(S)
登録番号
1804987
登録日
2025-07-24
意匠に係る物品
額縁付きドア
意匠分類
L4
-6210(建築用構成品)
出願番号
2025005539
出願日
2025-03-21
意匠権者
三協立山株式会社
代理人
弁理士法人英知国際特許商標事務所
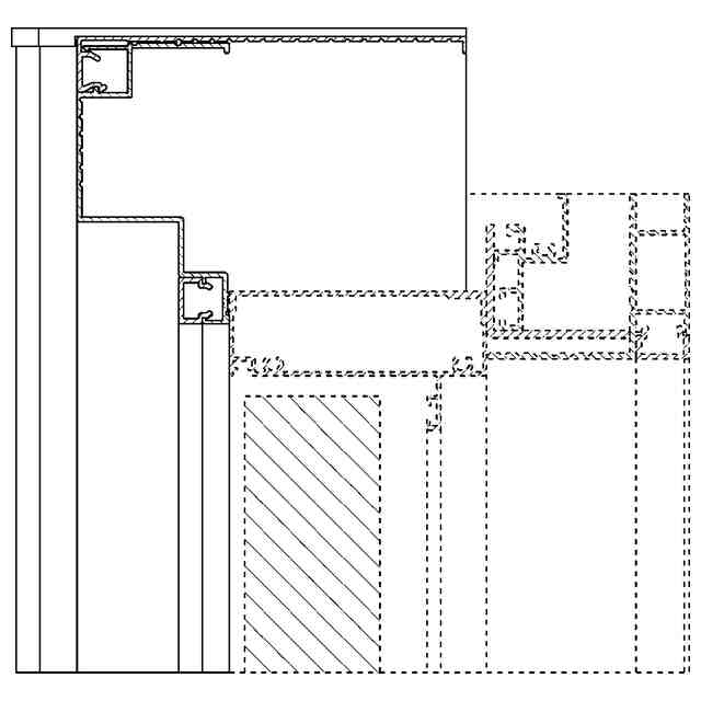
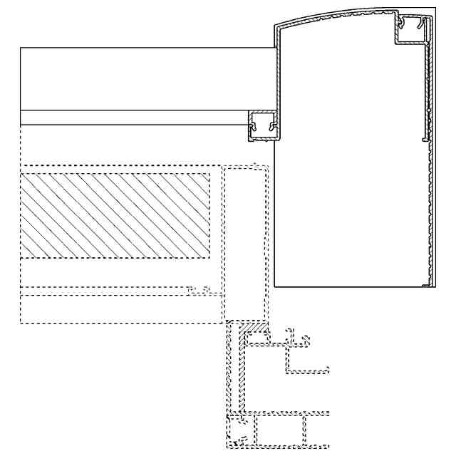
意匠に係る物品の説明
本物品は、ドア回りの既成枠に被せる化粧枠を有する額縁付きドアである。
意匠の説明
実線で表した部分が、意匠登録を受けようとする部分である。 断面図を含めて意匠登録を受けようとする部分を特定している。
この意匠をJ-PlatPat(特許庁公式サイト)で参照する
関連意匠
三協立山株式会社
建物用戸
10か月前
三協立山株式会社
建築用板材
2か月前
三協立山株式会社
建築用板材
2か月前
三協立山株式会社
建築用板材
2か月前
三協立山株式会社
額縁付きドア
2か月前
三協立山株式会社
門柱
14日前
三協立山株式会社
門扉
6か月前
三協立山株式会社
内窓用額縁材
10日前
三協立山株式会社
窓用突合せ框材
10日前
三協立山株式会社
手すり
2か月前
三協立山株式会社
機能門柱
1か月前
三協立山株式会社
機能門柱
1か月前
三協立山株式会社
カーポート
3か月前
三協立山株式会社
カーポート
3か月前
三協立山株式会社
カーポート
3か月前
三協立山株式会社
組立て車庫
9か月前
三協立山株式会社
組立て車庫
9か月前
三協立山株式会社
宅配ボックス
11か月前
三協立山株式会社
建具用オペレーターハンドル
2か月前
大建工業株式会社
窓
18日前
大建工業株式会社
窓
18日前
株式会社サカタ製作所
吊子
10か月前
株式会社大林組
障子
8か月前
株式会社サカタ製作所
吊子
10か月前
株式会社サカタ製作所
吊子
10か月前
個人
階段
6か月前
株式会社サカタ製作所
吊子
10か月前
株式会社サカタ製作所
吊子
10か月前
株式会社タクト
戸当り
7か月前
株式会社タクト
戸当り
7か月前
ナカ工業株式会社
点検口
2か月前
ナカ工業株式会社
点検口
2か月前
ナカ工業株式会社
点検口
2か月前
株式会社大林組
連結具
1か月前
ナカ工業株式会社
点検口
3日前
積水化学工業株式会社
樋継手
6日前
続きを見る
他の意匠を見る