TOP
|
特許
|
意匠
|
商標
意匠ウォッチ
Twitter
他の意匠を見る
発行日
2025-09-26
公報種別
意匠公報(S)
登録番号
1809297
登録日
2025-09-17
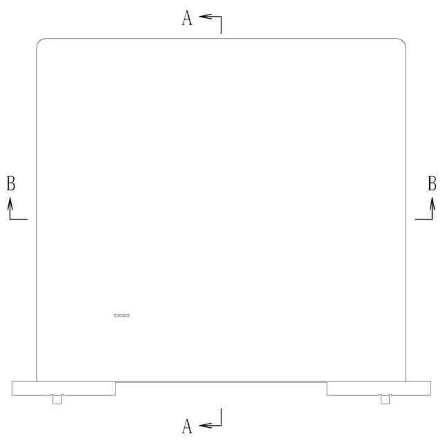
意匠に係る物品
冷蔵庫用庫内冷気ダクト
意匠分類
C6
-590(飲食用具及び調理用器具)
出願番号
2025002814
出願日
2025-02-14
意匠権者
日立グローバルライフソリューションズ株式会社
代理人
弁理士法人磯野国際特許商標事務所
意匠に係る物品の説明
本物品は、例えば使用状態を示す参考図1及び2に示すように、冷蔵庫の庫内に設置され、冷気の流路を形成する庫内冷気ダクトである。本物品は、使用時においては底面側から冷気を取り入れ、上面側及び左右側面側から冷気を吹き出すものである。
意匠の説明
表面処理を施した範囲を示す参考図において薄墨を付した部分は、表面にシボ加工がされている。
意匠ウォッチbot のツイートを見る
この意匠をJ-PlatPat(特許庁公式サイト)で参照する
関連意匠
日立グローバルライフソリューションズ株式会社
6か月前
日立グローバルライフソリューションズ株式会社
デマンド制御システム用画像
11か月前
日立グローバルライフソリューションズ株式会社
デマンド制御システム用画像
11か月前
日立グローバルライフソリューションズ株式会社
冷蔵庫
4か月前
日立グローバルライフソリューションズ株式会社
冷蔵庫
4か月前
日立グローバルライフソリューションズ株式会社
電気洗濯機
8か月前
日立グローバルライフソリューションズ株式会社
冷蔵庫
4か月前
日立グローバルライフソリューションズ株式会社
冷蔵庫
9か月前
日立グローバルライフソリューションズ株式会社
冷蔵庫
9か月前
日立グローバルライフソリューションズ株式会社
電気洗濯乾燥機
9か月前
日立グローバルライフソリューションズ株式会社
電気洗濯乾燥機
9か月前
日立グローバルライフソリューションズ株式会社
電気掃除機本体
2か月前
日立グローバルライフソリューションズ株式会社
電気掃除機本体
2か月前
日立グローバルライフソリューションズ株式会社
電気掃除機用バッテリー
5か月前
日立グローバルライフソリューションズ株式会社
電気掃除機用バッテリー
5か月前
日立グローバルライフソリューションズ株式会社
電気掃除機本体
2か月前
日立グローバルライフソリューションズ株式会社
電気掃除機用吸口
5か月前
日立グローバルライフソリューションズ株式会社
電気掃除機用吸口
5か月前
日立グローバルライフソリューションズ株式会社
冷蔵庫用庫内冷気ダクト
14日前
株式会社グラポート
箸
2か月前
個人
箸
7か月前
株式会社雪花
箸
7か月前
個人
箸
8か月前
ユ,ヘ ヨン
箸
23日前
株式会社大野ナイフ製作所
包丁
6か月前
株式会社 ヤクセル
包丁
5か月前
穂岐山刃物株式会社
包丁
3か月前
株式会社CHILL&CRAFT
包丁
6か月前
個人
はし
4か月前
株式会社トヨトミ
五徳
4か月前
株式会社佐竹産業
包丁
6か月前
株式会社貝印刃物開発センター
包丁
11か月前
株式会社佐竹産業
包丁
6か月前
株式会社大野ナイフ製作所
包丁
4か月前
株式会社龍泉刃物
包丁
4か月前
株式会社龍泉刃物
包丁
5か月前
続きを見る
他の意匠を見る