TOP
|
特許
|
意匠
|
商標
意匠ウォッチ
Twitter
他の意匠を見る
発行日
2025-10-03
公報種別
意匠公報(S)
登録番号
1809915
登録日
2025-09-25
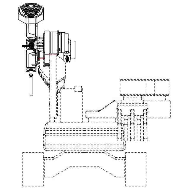
意匠に係る物品
電動建設機械
意匠分類
K3
-3211(農業用機械器具、鉱山機械、建設機械等)
出願番号
2025006823
出願日
2025-04-04
意匠権者
ナブテスコ株式会社
代理人
個人
,
個人
意匠に係る物品の説明
この意匠に係る物品は、運転席を有さず無人運転を可能とした、電動建設機械である。使用状態を示す参考図に示すように、電動アクチュエータを搭載しているため、回転軸ごとに動かすことができる。各部の名称を示す参考図に示すように、第1アームには、グラインダー、ロボットハンド及びドリルが装着されており、それぞれ取り替えて使用することができる。
意匠の説明
意匠登録を受けようとする部分を実線で、それ以外の部分を破線で表した。各図において表れる赤色の一点鎖線は、意匠登録を受けようとする部分とそれ以外の部分の境界のみを表している。重量物につき、底面図を省略する。
この意匠をJ-PlatPat(特許庁公式サイト)で参照する
関連意匠
ナブテスコ株式会社
9か月前
ナブテスコ株式会社
船舶用制御機
11か月前
ナブテスコ株式会社
メカナムホイール
11か月前
ナブテスコ株式会社
車両用ブレーキ制御器
2か月前
ナブテスコ株式会社
車両用ブレーキ制御器
2か月前
ナブテスコ株式会社
車両用保持具
1か月前
ナブテスコ株式会社
メカナムホイール用バレル
4か月前
ナブテスコ株式会社
メカナムホイール用バレル
4か月前
ナブテスコ株式会社
減速機
2か月前
ナブテスコ株式会社
減速機
2か月前
ナブテスコ株式会社
減速機
10か月前
ナブテスコ株式会社
減速機
10か月前
ナブテスコ株式会社
減速機
9か月前
ナブテスコ株式会社
減速機
4か月前
ナブテスコ株式会社
減速機
10か月前
ナブテスコ株式会社
減速機
10か月前
ナブテスコ株式会社
減速機
10か月前
ナブテスコ株式会社
減速機
10か月前
ナブテスコ株式会社
減速機
10か月前
ナブテスコ株式会社
アクチュエータ
4か月前
ナブテスコ株式会社
アクチュエータ
4か月前
ナブテスコ株式会社
アクチュエータ
4か月前
ナブテスコ株式会社
アクチュエータ
4か月前
ナブテスコ株式会社
アクチュエータ
4か月前
ナブテスコ株式会社
アクチュエータ
4か月前
ナブテスコ株式会社
電動建設機械
7か月前
ナブテスコ株式会社
電動建設機械
5日前
ナブテスコ株式会社
航空機用アクチュエータ
4か月前
ナブテスコ株式会社
航空機用リアクションリンク
4か月前
ナブテスコ株式会社
建設機械用マニホールド
5日前
ナブテスコ株式会社
建設機械用マニホールド
5日前
ナブテスコ株式会社
電動アクチュエータ式ショベルカー
5日前
株式会社コジマ
鎌
2か月前
株式会社キッツメタルワークス
鈴
13日前
株式会社コジマ
鎌
2か月前
個人
鋤簾
4か月前
続きを見る
他の意匠を見る