TOP
|
特許
|
意匠
|
商標
意匠ウォッチ
Twitter
他の意匠を見る
発行日
2025-10-24
公報種別
意匠公報(S)
登録番号
1811433
登録日
2025-10-16
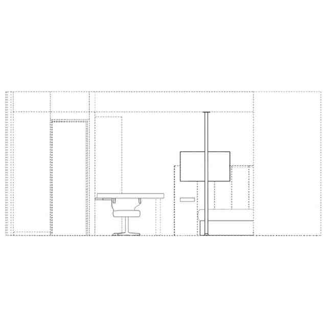
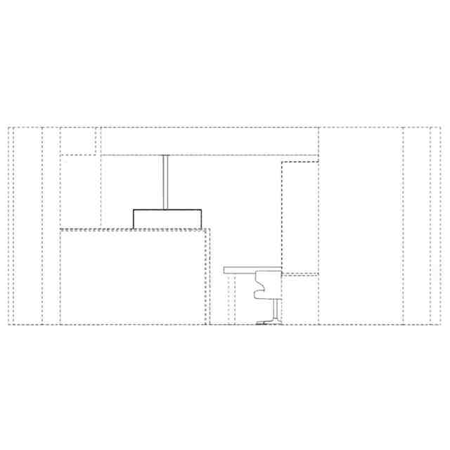
意匠に係る物品
ホテルの客室の内装
意匠分類
L3
-70(組立て家屋、屋外装備品等)
出願番号
2025011014
出願日
2025-06-03
意匠権者
株式会社ホテルアクティブ
代理人
個人
意匠に係る物品の説明
本内装は、大型ディスプレイ、同ディスプレイを支持する棒状体、宿泊客が同ディスプレイを視聴できるような位置に配置される椅子、同ディスプレイと同椅子との間に置かれる第1のテーブル、同椅子及び同第1のテーブルの側方に置かれるやや細長い第2のテーブル、同第1のテーブル及び同椅子の同第2のテーブルと反対側の側方に配置されており且つ宿泊客が同ディスプレイを視聴できる位置に枕などが位置するように配置されるベッド、並びに、同ベッドの枕が配置される場所の側方に配置されており且つその底面側が同ベッドよりも高くなるように配置されるサイドテーブルを含むように構成されたホテル客室の内装であって、このような構成により、宿泊客が同椅子に座って同第1のテーブルにパソコンを置いた状態で(a)同ディスプレイの画面を見ながらで仕事をしたり(b)宿泊客がスマートフォンのミラーリング機能を使用して同ディスプレイで取引先とビデオ会議をすることができ、又は宿泊客が同ベッドに横たわって同ディスプレイの画面を視聴したりすることができ、且つ同サイドテーブルの底面側が同ベッドよりも高い位置にあるためベッドメイクでのシーツ交換の際などにベッドを容易に動かせるようになり作業性を向上させることができる、ホテルの客室の内装である。
意匠の説明
実線で表された部分が意匠登録を受けようとする部分である。A~Eの各斜め上方からの透視図は、A~Eの各方向を示す参考平面図中に示す矢印A~Eの各斜め上方向からそれぞれ部分的に透過して客室内装を示す斜視図である。
意匠ウォッチbot のツイートを見る
この意匠をJ-PlatPat(特許庁公式サイト)で参照する
関連意匠
株式会社ホテルアクティブ
ホテルの客室の内装
4日前
株式会社LIXIL
門
1か月前
株式会社大林組
柵
2か月前
株式会社LIXIL
門
1か月前
株式会社LIXIL
門
1か月前
株式会社LIXIL
門
1か月前
積水樹脂株式会社
柵
6日前
住友林業株式会社
住宅
12か月前
住友林業株式会社
住宅
4か月前
三協立山株式会社
門扉
7か月前
YKK AP株式会社
門扉
3か月前
YKK AP株式会社
門扉
3か月前
株式会社長谷工コーポレーション
住宅
1か月前
YKK AP株式会社
門扉
3か月前
旭化成ホームズ株式会社
住宅
12か月前
旭化成ホームズ株式会社
住宅
1か月前
旭化成ホームズ株式会社
住宅
1か月前
石友ホーム株式会社
住宅
12か月前
株式会社LIXIL
門扉
7か月前
株式会社丸豊建硝
手摺
4か月前
株式会社丸豊建硝
手摺
4か月前
株式会社丸豊建硝
手摺
4か月前
住友林業株式会社
住宅
4か月前
住友林業株式会社
住宅
4か月前
株式会社東亜産業
倉庫
10か月前
積水ハウス株式会社
住宅
7か月前
積水ハウス株式会社
住宅
25日前
YKK AP株式会社
門扉
26日前
YKK AP株式会社
門扉
26日前
YKK AP株式会社
門扉
26日前
株式会社長谷工コーポレーション
門柱
7か月前
株式会社長谷工コーポレーション
門柱
7か月前
三協立山株式会社
門柱
29日前
住友林業株式会社
住宅
4か月前
石友ホーム株式会社
住宅
12か月前
積水ハウス株式会社
住宅
7か月前
続きを見る
他の意匠を見る