TOP
|
特許
|
意匠
|
商標
特許ウォッチ
Twitter
他の特許を見る
公開番号
2025148146
公報種別
公開特許公報(A)
公開日
2025-10-07
出願番号
2024048758
出願日
2024-03-25
発明の名称
加熱炉
出願人
ノリタケ株式会社
代理人
個人
,
個人
主分類
F27B
9/30 20060101AFI20250930BHJP(炉,キルン,窯;レトルト)
要約
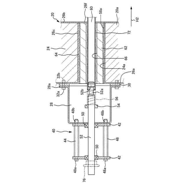
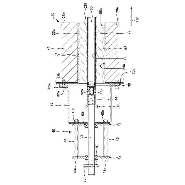
【課題】搬送ローラーの抜取り作業を容易に行うことが可能な加熱炉を提供すること。
【解決手段】搬送ローラー60の端部を第1のスリーブ62によって第1のスリーブ挿入孔58a内のうち端部の側に偏心した部分に配置した。このため、搬送ローラー60を第1のスリーブ挿入孔58aの長手方向に向けて傾斜させた姿勢で炉室22の内部から外部に抜取ることができるので、搬送ローラー60の抜取り作業用の空間内に障害物が存在する場合であっても搬送ローラー60の抜取り作業を容易に行うことが可能になる。
【選択図】図3
特許請求の範囲
【請求項1】
側壁を有するものであって、前記側壁に長孔が設けられた搬送室と、
前記搬送室内に設けられ、前記側壁の壁面に対して直交する直交方向に長尺なものであって被搬送物を搬送するための搬送ローラーと、
前記搬送室内に設けられ、前記直交方向に長尺なものであって前記被搬送物を加熱するための熱源と、
前記長孔内に設けられ、前記搬送ローラーの端部または前記熱源の端部が挿入された断熱部材と、を備え、
前記断熱部材は、前記搬送ローラーの端部または前記熱源の端部を前記長孔内のうち前記長孔の長手方向の端部の側に偏心した部分に配置するものであることを特徴とする加熱炉。
続きを表示(約 340 文字)
【請求項2】
前記断熱部材のうち前記長孔の長手方向の寸法は、前記断熱部材のうち前記長孔の短手方向の寸法に比べて大きく設定され、
前記断熱部材のうち前記断熱部材の端部の側に偏心した部分には、前記搬送ローラーの端部または前記熱源の端部が挿入される貫通孔が設けられていることを特徴とする請求項1に記載の加熱炉。
【請求項3】
前記断熱部材は、前記搬送ローラーの端部または前記熱源の端部を挟んで互いに対向する2つの分割断熱部材に分割されていることを特徴とする請求項2に記載の加熱炉。
【請求項4】
前記2つの分割断熱部材のそれぞれは、前記側壁の厚さ方向に相互に重なる複数の断熱板に分割されていることを特徴とする請求項3に記載の加熱炉。
発明の詳細な説明
【技術分野】
【0001】
本発明は被搬送物を直状の搬送室に沿って搬送しながら被搬送物を加熱する加熱炉に関する。
続きを表示(約 1,500 文字)
【背景技術】
【0002】
上記加熱炉には搬送室内に長尺物を設けた構成のものがある。この長尺物は搬送室の延び方向に対して直交する直交方向に長尺なものであり、被搬送物を搬送室に沿って搬送するための搬送ローラーおよび被搬送物を加熱するための熱源のそれぞれは長尺物の一例である。この加熱炉の場合には搬送室の側壁に円孔が設けられていた。この円孔内には円筒状の断熱部材が設けられており、長尺物の端部が断熱部材内に挿入されることによって長尺物の端部が円孔内に支持されていた。
【先行技術文献】
【特許文献】
【0003】
特開2009-30848号公報
【発明の概要】
【発明が解決しようとする課題】
【0004】
上記従来の加熱炉の場合には長尺物の保守点検作業または交換作業を行うに際して長尺物を直交方向へ真直ぐに搬送室の内部から外部に抜取る必要があった。このため、搬送室の外部に長尺物の長さ寸法と同等程度の抜取り作業用の空間を必要とするので、抜取り作業用の空間内に柱や機械等の障害物が存在する場合に長尺物の抜取り作業に支障を来す虞があった。
【0005】
本発明は上記事情に鑑みてなされたものであり、その目的は長尺物を抜取るための抜取り作業用の空間内に障害物が存在する場合であっても長尺物の抜取り作業を容易に行うことが可能な加熱炉を提供することにある。
【課題を解決するための手段】
【0006】
第1の発明の加熱炉の要旨とするところは、(a)側壁を有するものであって前記側壁に長孔が設けられた搬送室と、(b)前記搬送室内に設けられ前記側壁の壁面に対して直交する直交方向に長尺なものであって被搬送物を搬送するための搬送ローラーと、(c)前記搬送室内に設けられ前記直交方向に長尺なものであって前記被搬送物を加熱するための熱源と、(d)前記長孔内に設けられ前記搬送ローラーの端部または前記熱源の端部が挿入された断熱部材とを備え、(f)前記断熱部材は前記搬送ローラーの端部または前記熱源の端部を前記長孔内のうち前記長孔の長手方向の端部の側に偏心した部分に配置するものであることにある。
【0007】
第2の発明の加熱炉の要旨とするところは、第1の発明において、(a)前記断熱部材のうち前記長孔の長手方向の寸法は前記断熱部材のうち前記長孔の短手方向の寸法に比べて大きく設定され、(b)前記断熱部材のうち前記断熱部材の端部の側に偏心した部分には前記搬送ローラーの端部または前記熱源の端部が挿入される貫通孔が設けられていることを特徴とする請求項1に記載の加熱炉。
【0008】
第3の発明の加熱炉の要旨とするところは、第2の発明において、(a)前記断熱部材は前記搬送ローラーの端部または前記熱源の端部を挟んで互いに対向する2つの分割断熱部材に分割されていることにある。
【0009】
第4の発明の加熱炉の要旨とするところは、第3の発明において、(a)前記2つの分割断熱部材のそれぞれは前記側壁の厚さ方向に相互に重なる複数の断熱板に分割されていることにある。
【発明の効果】
【0010】
第1の発明によれば、搬送ローラーの端部または熱源の端部が断熱部材によって長孔内のうち長孔の端部の側に偏心した部分に配置されている。このため、長尺物としての搬送ローラーまたは熱源を長孔の長手方向に向けて傾斜させた姿勢で搬送室の内部から外部に抜取ることができる。従って、長尺物の抜取り作業用の空間内に障害物が存在する場合であっても長尺物の抜取り作業を容易に行うことが可能になる。
(【0011】以降は省略されています)
この特許をJ-PlatPat(特許庁公式サイト)で参照する
関連特許
ノリタケ株式会社
洗浄装置
3日前
ノリタケ株式会社
熱処理容器
3日前
ノリタケ株式会社
焼成用治具
4日前
ノリタケ株式会社
担体構造体
4日前
ノリタケ株式会社
焼成用治具
4日前
ノリタケ株式会社
焼成用治具
4日前
ノリタケ株式会社
棒材切断機
3日前
ノリタケ株式会社
研磨パッド
3日前
ノリタケ株式会社
熱伝導シート
3日前
ノリタケ株式会社
導電性ペースト
3日前
ノリタケ株式会社
超砥粒ホイール
3日前
ノリタケ株式会社
封止用グリーンシート
3日前
ノリタケ株式会社
砥材及びその製造方法
4日前
ノリタケ株式会社
静電容量タッチパネル
4日前
ノリタケ株式会社
静電容量タッチパネル
4日前
ノリタケ株式会社
電気化学セル用ペースト
5日前
ノリタケ株式会社
触媒材料およびその利用
4日前
ノリタケ株式会社
触媒材料およびその利用
4日前
ノリタケ株式会社
触媒材料およびその利用
4日前
ノリタケ株式会社
研磨パッド粗材の加工装置
3日前
ノリタケ株式会社
ガラス接合材及びその利用
3日前
ノリタケ株式会社
ガラス接合材及びその利用
3日前
ノリタケ株式会社
焼成用治具およびフレーム
4日前
ノリタケ株式会社
ロータリーキルン用の炉心管
4日前
ノリタケ株式会社
ガラス接合材およびその利用
3日前
ノリタケ株式会社
平面研削用レジンボンド砥石
3日前
ノリタケ株式会社
研磨パッド及びウェハ研磨方法
3日前
ノリタケ株式会社
ロールコンパクション成形装置
3日前
ノリタケ株式会社
組立体の製造方法および組立体
3日前
ノリタケ株式会社
研磨パッド及びウェハ研磨方法
3日前
ノリタケ株式会社
ロールコンパクション成形装置
3日前
ノリタケ株式会社
自動計量装置および自動計量方法
3日前
ノリタケ株式会社
半導体基板の研磨液及び研磨方法
3日前
ノリタケ株式会社
スラリーアイス洗浄装置用の管状部品
3日前
ノリタケ株式会社
研磨パッド及びウェハのノッチ研磨方法
3日前
ノリタケ株式会社
熱伝導体、ヒートスプレッダおよび放熱構造体
4日前
続きを見る
他の特許を見る