TOP
|
特許
|
意匠
|
商標
特許ウォッチ
Twitter
他の特許を見る
公開番号
2025160024
公報種別
公開特許公報(A)
公開日
2025-10-22
出願番号
2024062972
出願日
2024-04-09
発明の名称
汚泥乾燥加熱釜
出願人
三浦工業株式会社
代理人
個人
,
個人
主分類
C02F
11/13 20190101AFI20251015BHJP(水,廃水,下水または汚泥の処理)
要約
【課題】乾燥を終了させる適切な時点を決定することができる汚泥乾燥加熱釜を提供すること。
【解決手段】汚泥乾燥加熱釜は、汚泥を乾燥するため汚泥乾燥加熱釜であって、汚泥を収納して加熱できる釜本体と、汚泥の乾燥状態を検知できる状態センサと、を備える。
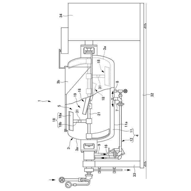
【選択図】図1
特許請求の範囲
【請求項1】
汚泥を乾燥するため汚泥乾燥加熱釜であって、
汚泥を収納して加熱できる釜本体と、
汚泥の乾燥状態を検知できる状態センサと、を備える汚泥乾燥加熱釜。
続きを表示(約 310 文字)
【請求項2】
汚泥を撹拌する撹拌羽根を有する撹拌装置を更に備え、
前記状態センサは前記撹拌羽根に作用する負荷を検知する請求項1に記載の汚泥乾燥加熱釜。
【請求項3】
汚泥の乾燥状態を判定する制御部を更に備え、
前記制御部は、前記撹拌羽根に作用する負荷の変化が上昇から下降に転じる転換時点、又は前記転換時点の前後を含む所定の時間範囲内のいずれかの時点で前記釜本体による加熱を終了させる請求項2に記載の汚泥乾燥加熱釜。
【請求項4】
前記制御部は、前記撹拌羽根に作用する負荷の値に基づいて、前記釜本体による加熱を終了させるまでの時間を予測する請求項3に記載の汚泥乾燥加熱釜。
発明の詳細な説明
【技術分野】
【0001】
本発明は、汚泥を乾燥するため汚泥乾燥加熱釜に関する。
続きを表示(約 1,000 文字)
【背景技術】
【0002】
産業廃棄物の体積を小さくするために、汚泥を乾燥させる技術が提案されている。例えば特許文献1には、木くずを燃料とするバイオマスバーナーを用いて汚泥を乾燥させる技術が記載されている。
【先行技術文献】
【特許文献】
【0003】
特開2022-47971号公報
【発明の概要】
【発明が解決しようとする課題】
【0004】
ところで、汚泥の乾燥においては、乾燥が不足している場合は汚泥産廃量が増加し、乾燥し過ぎた場合は粉塵が問題となる。そこで、乾燥を終了させる適切な時点を決定することが求められる。
【0005】
従来、汚泥の重量を測定することで、乾燥を終了させる時点を決定する技術が提案されている。しかし、重量の測定では水分と汚泥物質の割合が把握できないため、含水率を把握できない。そのため、重量の変化に基づいて乾燥を終了させる適切な時点を決定することは困難である。
【0006】
そこで本発明は、乾燥を終了させる適切な時点を決定することができる汚泥乾燥加熱釜を提供することを目的とする。
【課題を解決するための手段】
【0007】
(1)本発明の汚泥乾燥加熱釜は、汚泥を乾燥するための釜であって、汚泥を収納して加熱できる釜本体と、汚泥の乾燥状態を検知できる状態センサと、を備える。
【0008】
(1)の汚泥乾燥加熱釜では、状態センサによって汚泥の乾燥状態を検知しながら、釜本体が汚泥を乾燥する。粉塵の発生が少なく、乾燥効率がよい含水率になると、釜本体が乾燥動作を停止する。上記のように、汚泥乾燥加熱釜は、乾燥を終了させる適切な時点を決定することができる。
【0009】
(2)前記汚泥乾燥加熱釜は、汚泥を撹拌し撹拌羽根を有する撹拌装置を更に備える。前記状態センサは、前記撹拌羽根に作用する負荷を検知する。
【0010】
(2)の汚泥乾燥加熱釜では、撹拌羽根に作用する負荷に基づいて、汚泥の乾燥状態が検知される。したがって、汚泥の乾燥状態が正確に検知される。それに対して、重量センサでは装置全体の重量を含めて汚泥の重量を測定するため乾燥状態を正確に検知できないことがあり、赤外線温度センサではセンサの汚れによって汚泥の乾燥状態を正確に検知できないことがある。
(【0011】以降は省略されています)
この特許をJ-PlatPat(特許庁公式サイト)で参照する
関連特許
三浦工業株式会社
燃焼装置
16日前
三浦工業株式会社
貫流ボイラ
7日前
三浦工業株式会社
ガス化装置
10日前
三浦工業株式会社
洗浄システム
1か月前
三浦工業株式会社
燃焼システム
14日前
三浦工業株式会社
汚泥減容方法
22日前
三浦工業株式会社
台数制御装置
21日前
三浦工業株式会社
劣化検出装置
21日前
三浦工業株式会社
水素燃焼ボイラ
1か月前
三浦工業株式会社
汚泥乾燥加熱釜
2日前
三浦工業株式会社
二重管接続構造
15日前
三浦工業株式会社
ウエスコポンプ
14日前
三浦工業株式会社
水蒸気発生装置
14日前
三浦工業株式会社
汚泥減容システム
14日前
三浦工業株式会社
水素貯蔵供給装置
10日前
三浦工業株式会社
熱媒供給システム
28日前
三浦工業株式会社
船舶用発電システム
21日前
三浦工業株式会社
精製水供給システム
2日前
三浦工業株式会社
コンピュータプログラム
3日前
三浦工業株式会社
ヒータ装置及び貫流ボイラ
1か月前
三浦工業株式会社
燃焼装置、アンモニア評価方法
7日前
東京瓦斯株式会社
電力供給システム
14日前
メタウォーター株式会社
焼却システム及び燃焼制御方法
1か月前
メタウォーター株式会社
焼却システム及び熱媒供給制御方法
1か月前
株式会社ウィズアクア
水質浄化装置
10日前
三浦工業株式会社
汚泥減容方法
22日前
栗田工業株式会社
排水回収装置
21日前
三浦工業株式会社
汚泥乾燥加熱釜
2日前
名古屋メッキ工業株式会社
溶存金属析出装置
今日
栗田工業株式会社
用水の水質予測方法
21日前
栗田工業株式会社
電気イオン濃縮装置
今日
三浦工業株式会社
精製水供給システム
2日前
栗田工業株式会社
超純水製造装置の制御方法
10日前
WOTA株式会社
液性判定システム及び液性判定方法
今日
株式会社神鋼環境ソリューション
貯留槽
14日前
栗田工業株式会社
電気脱イオン装置の運転方法
1日前
続きを見る
他の特許を見る