TOP
|
特許
|
意匠
|
商標
特許ウォッチ
Twitter
他の特許を見る
10個以上の画像は省略されています。
公開番号
2025129665
公報種別
公開特許公報(A)
公開日
2025-09-05
出願番号
2024026442
出願日
2024-02-26
発明の名称
パネルおよびパネル設置構造
出願人
YKK AP株式会社
代理人
弁理士法人樹之下知的財産事務所
主分類
E06B
9/24 20060101AFI20250829BHJP(戸,窓,シャッタまたはローラブラインド一般;はしご)
要約
【課題】斜視効果を発揮できると共に耐久性を向上できるパネルおよびパネル設置構造を提供すること。
【解決手段】パネル10は、面外方向に積層される第一パネル層20Aおよび第二パネル層20Bを少なくとも有する。第一パネル層20Aは、少なくとも、面内方向に延びて互いに隣り合う部分22の間に貫通部23を形成する第一壁部24を有する。第二パネル層20Bは、少なくとも、面内方向に延びて互いに隣り合う部分の間に貫通部を形成する第二壁部34を有する。第一壁部24および第二壁部34は、面外方向に互いに重なって配置され、第一壁部24のうち互いに隣り合う部分22と第二壁部34のうち互いに隣り合う部分とは、互いに交差する。
【選択図】図2
特許請求の範囲
【請求項1】
面外方向に積層される第一パネル層および第二パネル層を少なくとも有し、
前記第一パネル層は、少なくとも、面内方向に延びて互いに隣り合う部分の間に貫通部を形成する第一壁部を有し、
前記第二パネル層は、少なくとも、面内方向に延びて互いに隣り合う部分の間に貫通部を形成する第二壁部を有し、
前記第一壁部および前記第二壁部は、面外方向に互いに重なって配置され、
前記第一壁部のうち前記互いに隣り合う部分と前記第二壁部のうち前記互いに隣り合う部分とは、互いに交差する
ことを特徴とするパネル。
続きを表示(約 500 文字)
【請求項2】
請求項1に記載のパネルにおいて、
前記第一壁部および前記第二壁部のうちの少なくとも一方は、面内方向において、前記互いに隣り合う部分が第一方向に沿って延びる第一構成部と、前記第一構成部に隣接すると共に前記互いに隣り合う部分が前記第一方向に交差する第二方向に沿って延びる第二構成部とを有する
ことを特徴とするパネル。
【請求項3】
請求項1に記載のパネルにおいて、
面外方向に積層される前記第一パネル層および前記第二パネル層のうちの少なくとも一方は、硬質層および軟質層が積層されてなる
ことを特徴とするパネル。
【請求項4】
請求項1に記載のパネルにおいて、
前記第一パネル層および前記第二パネル層は、別部材として構成されると共に互いに接合される
ことを特徴とするパネル。
【請求項5】
建物躯体の開口部には、建具が設置され、
前記建具に対する室内外の一方側の位置には、請求項1から請求項4のいずれか一項に記載のパネルが設置される
ことを特徴とするパネル設置構造。
発明の詳細な説明
【技術分野】
【0001】
本発明は、斜視効果を発揮するパネルおよびパネル設置構造に関する。
続きを表示(約 2,800 文字)
【背景技術】
【0002】
従来、ルーバー羽根を上下方向に複数備えたルーバーユニットが知られている(特許文献1参照)。このルーバーユニットでは、ルーバー羽根が回動軸に取り付けられており、この回動軸の回動によって各ルーバー羽根の回動角度を変化させ、通風や採光を行えると共に斜視効果を発揮するようになっている。
【先行技術文献】
【特許文献】
【0003】
特開2008-144445号公報
【発明の概要】
【発明が解決しようとする課題】
【0004】
ところで、特許文献1に記載のようなルーバーユニットでは、回動軸の回動によって各ルーバー羽根の回動角度を変化させられるように、ルーバー羽根同士を互いに分離して配置している。このため、ルーバー羽根の強度を高めることが困難であり、例えば飛来物などに対するルーバーユニットの耐久性の向上を図り難い。
一方、耐久性の高いものとしていわゆる面格子が挙げられるが、面格子では前述した斜視効果を発揮し難い。
【0005】
本発明の目的は、斜視効果を発揮できると共に耐久性を向上できるパネルおよびパネル設置構造を提供することにある。
【課題を解決するための手段】
【0006】
本発明のパネルは、面外方向に積層される第一パネル層および第二パネル層を少なくとも有し、前記第一パネル層は、少なくとも、面内方向に延びて互いに隣り合う部分の間に貫通部を形成する第一壁部を有し、前記第二パネル層は、少なくとも、面内方向に延びて互いに隣り合う部分の間に貫通部を形成する第二壁部を有し、前記第一壁部および前記第二壁部は、面外方向に互いに重なって配置され、前記第一壁部のうち互いに隣り合う部分と前記第二壁部のうち前記互いに隣り合う部分とは、互いに交差することを特徴とする。
本発明のパネル設置構造は、建物躯体の開口部には、建具が設置され、前記建具に対する室内外の一方側の位置には、前述した本発明のパネルが設置されることを特徴とする。
【発明の効果】
【0007】
本発明によれば、斜視効果を発揮できると共に耐久性を向上できるパネルおよびパネル設置構造を提供することができる。
【図面の簡単な説明】
【0008】
本発明の実施形態に係るパネル設置構造を示す説明図。
本発明の第1実施形態に係るパネルを示す斜視図。
第1実施形態に係るパネルを示す説明図。
第1実施形態に係るパネルの第一パネル層および第二パネル層を示す前面図。
本発明の第2実施形態に係るパネルを示す斜視図。
第2実施形態に係るパネルを示す説明図。
第2実施形態に係るパネルの第一パネル層および第二パネル層を示す前面図。
本発明の第3実施形態に係るパネルを示す斜視図。
本発明の第4実施形態に係るパネルを示す斜視図。
第2実施形態に係るパネルの破壊試験結果に関する説明図。
【発明を実施するための形態】
【0009】
[第1実施形態]
以下、本発明の第1実施形態を図面に基づいて説明する。
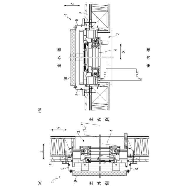
図1および図2において、第1実施形態に係るパネル10は、建物躯体2の開口部3に設置される建具としての開閉窓4に対して室外側にブラケット5を介して配置されるものであり、このようにパネル10が設置されることで本実施形態に係るパネル設置構造1が構成されている。パネル10は、面外方向に積層されるパネル層20A(第一パネル層)およびパネル層20B(第二パネル層)を有している。なお、開閉窓4は、縦開きおよび横開きが可能ないわゆるドレーキップ窓である。
以下の説明において、パネル10の左右方向をX軸方向とし、パネル10の上下方向をY軸方向とし、パネル10の見込み方向をZ軸方向(奥行方向)とする。X,Y,Z軸方向は互いに直交する。パネル10のX,Y軸方向は面内方向に含まれ、Z軸方向は面外方向に含まれる。また、開閉窓4に対する室外側および室内側は面外方向に対向する関係にあることとする。
【0010】
図2から図4に示すように、パネル層20A,20Bは、互いに別部材として構成されており、接着剤などによって互いにZ軸方向に接合されている。
パネル層20Aは、全体として矩形状であり、図4の(A)に示すように、面内方向に延びて互いに隣り合う部分22の間に貫通部23を形成する第一壁部24を全面に有している。互いに隣り合う部分22同士の間隔は一定である。貫通部23は、スリット状に形成されているが、これに限らず、例えば孔状に形成されていてもよい。
第一壁部24は、面内方向において、互いに隣り合う部分22がX軸方向(第一方向)に沿って延びる第一構成部25,26と、第一構成部25,26に隣接すると共に互いに隣り合う部分22がY軸方向(第二方向)に沿って延びる第二構成部27,28とを有しており、第一構成部25,26および第二構成部27,28によって構成される矩形状のユニット21を上下左右に複数配置して構成されている。なお、図4の(A)に示すパネル層20Aの右側面を構成するユニット21Aは、第一構成部25および第二構成部28で構成される半ユニットとして構成されており、このようにユニット21の構成部分はパネル層20Aの形状や寸法に応じて適宜変更可能である。
第一構成部25,26および第二構成部27,28のそれぞれは、図4の(A)に示すように、前面からみて略矩形状に形成されている。第一構成部25および第二構成部27はX軸方向において互いに隣接していると共に、第二構成部28および第一構成部26はX軸方向において互いに隣接している。第一構成部25および第二構成部28はY軸方向において互いに隣接しており、第二構成部27および第一構成部26はY軸方向において互いに隣接している。また、第一構成部25,26は斜め方向に互いに対向して配置されていると共に、第二構成部27,28は斜め方向に互いに対向して配置されている。
第一構成部25,26および第二構成部27,28のそれぞれは、樹脂製の連続材料で長尺に連続して構成されており、例えば3Dプリンタ装置などで容易に形成し得る構成となっている。なお、パネル層20Aは、3Dプリンタ装置で形成可能であるが、これに限らず、例えば射出成形装置によって射出成形で形成してもよく、また、プレス成形装置によってプレス成形してもよい。また、パネル層20Aには、適宜加色してもよい。
(【0011】以降は省略されています)
この特許をJ-PlatPat(特許庁公式サイト)で参照する
関連特許
YKK AP株式会社
建具
13日前
YKK AP株式会社
建具
3日前
YKK AP株式会社
屋根構造体
今日
YKK AP株式会社
屋根構造体
今日
YKK AP株式会社
屋根構造体
今日
YKK AP株式会社
屋根構造体
今日
YKK AP株式会社
戸車および建具
3日前
YKK AP株式会社
カーテンウォールユニット
今日
YKK AP株式会社
パネルおよびパネル設置構造
27日前
YKK AP株式会社
屋根構造体及び屋根構造体の施工方法
今日
個人
網戸
4か月前
個人
脚立の転落防止ポール
4か月前
中国電力株式会社
脚立
1か月前
株式会社ESP
止水板
1か月前
三協立山株式会社
建具
4か月前
株式会社ナカオ
作業台
22日前
三協立山株式会社
構造体
3か月前
三協立山株式会社
構造体
3か月前
三協立山株式会社
開口部装置
24日前
三協立山株式会社
開口部装置
4か月前
三協立山株式会社
開口部装置
1か月前
株式会社ニチベイ
ブラインド
4か月前
三協立山株式会社
開口部装置
1か月前
三協立山株式会社
開口部装置
3か月前
三協立山株式会社
開口部装置
1か月前
三協立山株式会社
開口部装置
3か月前
三協立山株式会社
開口部装置
24日前
ミサワホーム株式会社
水切り材
1か月前
株式会社ウッドワン
ルーバー扉
4か月前
株式会社ニチベイ
縦型ブラインド
1か月前
株式会社TJMデザイン
脚立用ホルダー
2か月前
不二サッシ株式会社
引違いサッシ
27日前
株式会社大奉金属
止水構造
3か月前
株式会社LIXIL
太陽電池ガラス
3日前
永大産業株式会社
開閉構造体
3か月前
三協立山株式会社
サッシの製造方法
23日前
続きを見る
他の特許を見る