TOP
|
特許
|
意匠
|
商標
特許ウォッチ
Twitter
他の特許を見る
10個以上の画像は省略されています。
公開番号
2025140929
公報種別
公開特許公報(A)
公開日
2025-09-29
出願番号
2024040581
出願日
2024-03-15
発明の名称
構造体
出願人
三協立山株式会社
代理人
個人
主分類
E04D
13/18 20180101AFI20250919BHJP(建築物)
要約
【課題】 施工性を向上できる構造体の提供。
【解決手段】 垂木1,1,…とソーラーパネル2,2,…と前枠10とを備え、垂木1,1,…は、間隔をおいて複数設けてあり、ソーラーパネル2,2,…は、垂木1,1,…間に架設してあり、前枠10は、複数の垂木1,1,…の水上側端部に架設してあり、垂木1,1,…の小口を隠しており、立ち上がり部39を有し、立ち上がり部39でソーラーパネル2,2,…のフレーム12を隠している。
【選択図】 図3
特許請求の範囲
【請求項1】
垂木とソーラーパネルと前枠とを備え、垂木は、間隔をおいて複数設けてあり、ソーラーパネルは、垂木間に架設してあり、前枠は、複数の垂木の水上側端部に架設してあり、垂木の小口を隠しており、立ち上がり部を有し、立ち上がり部でソーラーパネルのフレームを隠していることを特徴とする構造体。
続きを表示(約 150 文字)
【請求項2】
垂木とソーラーパネルと樋とを備え、垂木は、間隔をおいて複数設けてあり、ソーラーパネルは、垂木間に架設してあり、樋は、複数の垂木の水下側端部に架設してあり、垂木の小口を隠しており、立ち上がり部を有し、立ち上がり部でソーラーパネルのフレームを隠していることを特徴とする構造体。
発明の詳細な説明
【技術分野】
【0001】
本発明は、カーポート等の構造体に関する。
続きを表示(約 2,500 文字)
【背景技術】
【0002】
カーポート等の構造体においては、施工性の良いものが求められている。
【発明の概要】
【発明が解決しようとする課題】
【0003】
本発明は以上に述べた実情に鑑み、施工性を向上できる構造体の提供を目的とする。
【課題を解決するための手段】
【0004】
上記の課題を達成するために請求項1記載の発明による構造体は、垂木とソーラーパネルと前枠とを備え、垂木は、間隔をおいて複数設けてあり、ソーラーパネルは、垂木間に架設してあり、前枠は、複数の垂木の水上側端部に架設してあり、垂木の小口を隠しており、立ち上がり部を有し、立ち上がり部でソーラーパネルのフレームを隠していることを特徴とする。
【0005】
請求項2記載の発明による構造体は、垂木とソーラーパネルと樋とを備え、垂木は、間隔をおいて複数設けてあり、ソーラーパネルは、垂木間に架設してあり、樋は、複数の垂木の水下側端部に架設してあり、垂木の小口を隠しており、立ち上がり部を有し、立ち上がり部でソーラーパネルのフレームを隠していることを特徴とする。
【発明の効果】
【0006】
請求項1記載の発明による構造体は、垂木とソーラーパネルと前枠とを備え、垂木は、間隔をおいて複数設けてあり、ソーラーパネルは、垂木間に架設してあり、前枠は、複数の垂木の水上側端部に架設してあり、垂木の小口を隠しており、立ち上がり部を有し、立ち上がり部でソーラーパネルのフレームを隠しているので、屋根の施工を簡略化することができ、施工性が向上する。しかも、前枠の立ち上がり部でソーラーパネルのフレームが隠れるので、意匠性も向上する。
【0007】
請求項2記載の発明による構造体は、垂木とソーラーパネルと樋とを備え、垂木は、間隔をおいて複数設けてあり、ソーラーパネルは、垂木間に架設してあり、樋は、複数の垂木の水下側端部に架設してあり、垂木の小口を隠しており、立ち上がり部を有し、立ち上がり部でソーラーパネルのフレームを隠しているので、屋根の施工を簡略化することができ、施工性が向上する。しかも、樋の立ち上がり部でソーラーパネルのフレームが隠れるので、意匠性も向上する。
【図面の簡単な説明】
【0008】
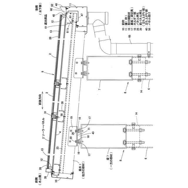
本発明の構造体の一実施形態を示す正面図である。
同構造体の側面図である。
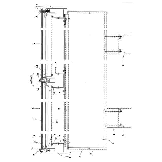
同構造体の前後方向の縦断面図である。
同構造体の左右方向の縦断面図である。
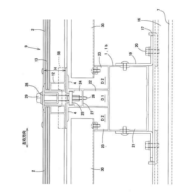
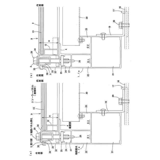
端部垂木の周辺を拡大して示す縦断面図であって、(a)は高さ寸法が低い方のソーラーパネルを取付けた場合、(b)は高さ寸法が高い方のソーラーパネルを取付けた場合を示す。
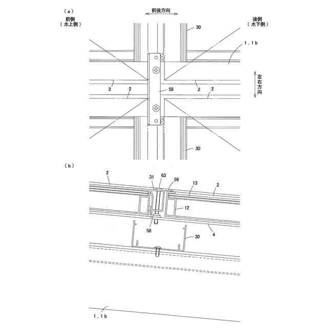
中間垂木の周辺を拡大して示す縦断面図である。
(a)は中間垂木のパネル受けが取付く部分を拡大して示す平面図であり、(b)は同部分の縦断面図である。
梁上に取付補助材を取付けるときの状態を示す斜視図である。
垂木に裏板を取付けるときの状態を示す斜視図である。
裏板を垂木の長手方向の所定の位置に位置決めして固定する際の手順を示す縦断面図である。
中間垂木に樋固定金具を取付けるときの状態を示す斜視図である。
梁上に垂木を取付けるときの状態を示す斜視図である。
梁上に垂木を取付けるときの状態を示す斜視図であって、スケールを当てて垂木間のピッチを確認している状態を示す。
垂木間に中桟と遮光部品を取付けるときの状態を示す斜視図である。
樋を取付けるときの状態を示す斜視図である。
樋を取付けるときの手順を順に示す縦断面図である。
垂木上にソーラーパネルを配置するときの様子を示す縦断面図である。
前枠上にパネル押えを取付けるときの状態を示す斜視図である。
同構造体の施工手順を示す斜視図である。
同構造体の施工手順(図19-1の続き)を示す斜視図である。
同構造体の施工手順(図19-2の続き)を示す斜視図である。
同構造体の施工手順(図19-3の続き)を示す斜視図である。
同構造体の施工手順(図19-4の続き)を示す斜視図である。
同構造体の施工手順(図19-5の続き)を示す斜視図である。
本発明の構造体のバリエーションを示す正面図であって、(a)は単体のもの、(b)は2連棟の場合、(c)は3連棟の場合を示す。
2連棟の構造体の正面図である。
中間の柱上に梁を繋いで連結する部分の分解斜視図である。
梁の繋ぎ目部分の処理の仕方を示す斜視図と縦断面図である。
2連棟の構造体の前後方向の縦断面図である。
2連棟の構造体の樋の繋ぎ目部分を示す斜視図である。
2連棟の構造体の屋根の樋の繋ぎ目部分の周辺を拡大して示す平面図である。
【発明を実施するための形態】
【0009】
以下、本発明の実施の形態を図面に基づいて説明する。なお、請求項1に係る発明の実施形態についての説明は、主に段落[0025]に記載されており、請求項2に係る発明の実施形態についての説明は、主に段落[0027],[0028]に記載されている。
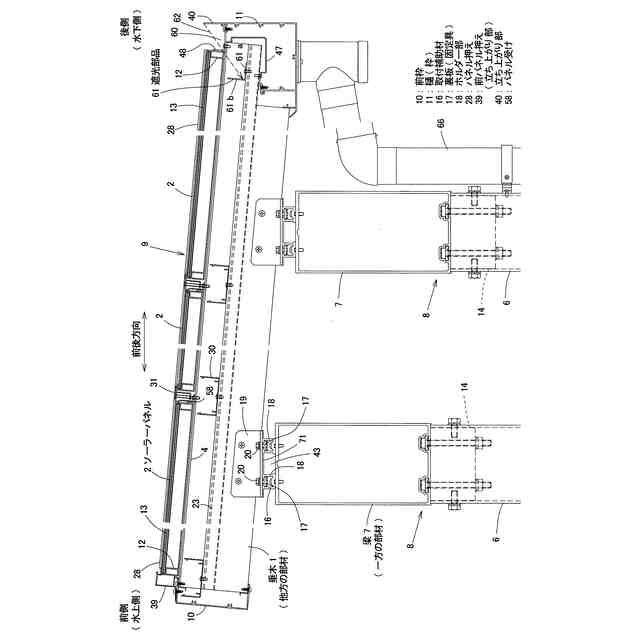
図1~7は、本発明の構造体の一実施形態を示している。本構造体は、図1,2に示すように、乗用車2台用のカーポートに適用したものである。また本構造体は、屋根材としてソーラーパネル2を使用しており、カーポートと太陽光発電設備を兼ねるものとなっている。
【0010】
本構造体は、図1,2に示すように、左右の柱6,6上に梁7を架設した門型のフレーム8を前後方向に間隔をおいて2組備え、そのフレーム8上に屋根9を支持してある。フレーム8は、図2に示すように、前側のものが後側のものより高くなっており、屋根9は後側が低くなるように傾斜している。
(【0011】以降は省略されています)
この特許をJ-PlatPat(特許庁公式サイト)で参照する
関連特許
三協立山株式会社
構造体
20日前
三協立山株式会社
構造体
20日前
三協立山株式会社
構造体
20日前
三協立山株式会社
構造体
20日前
三協立山株式会社
構造体
20日前
三協立山株式会社
構造体
20日前
三協立山株式会社
簡易建物
1か月前
三協立山株式会社
簡易建物
1か月前
三協立山株式会社
開口部装置
1か月前
三協立山株式会社
開口部装置
1か月前
三協立山株式会社
開口部装置
1か月前
三協立山株式会社
開口部装置
1か月前
三協立山株式会社
開口部装置
24日前
三協立山株式会社
開口部装置
1か月前
三協立山株式会社
開口部装置
1か月前
三協立山株式会社
開口部装置
12日前
三協立山株式会社
荷物昇降装置
20日前
三協立山株式会社
水耕栽培装置
10日前
三協立山株式会社
サッシの製造方法
1か月前
三協立山株式会社
構造体、構造体の製造方法
20日前
個人
接合構造
13日前
個人
屋台
1か月前
個人
タッチミー
12日前
個人
野良猫ハウス
1か月前
個人
転落防止用手摺
1か月前
個人
フェンス
2か月前
積水樹脂株式会社
柵体
1か月前
個人
ベンリナアングル
12日前
ニチハ株式会社
建築板
1か月前
個人
地下型マンション
3か月前
個人
居住車両用駐車場
1か月前
個人
筋交自動設定装置
20日前
個人
鋼管結合資材
3か月前
株式会社タナクロ
テント
3か月前
個人
壁断熱パネル
4か月前
個人
熱抵抗多層断熱建材
1か月前
続きを見る
他の特許を見る