TOP
|
特許
|
意匠
|
商標
特許ウォッチ
Twitter
他の特許を見る
10個以上の画像は省略されています。
公開番号
2025150867
公報種別
公開特許公報(A)
公開日
2025-10-09
出願番号
2024052011
出願日
2024-03-27
発明の名称
屋外構造物
出願人
YKK AP株式会社
代理人
弁理士法人酒井国際特許事務所
主分類
E04B
1/343 20060101AFI20251002BHJP(建築物)
要約
【課題】製造コストが増える事態や部品点数が増える事態を招来することなく外観品質の向上を図る。
【解決手段】支柱11に支持された梁12の上面に梁12に交差する方向に沿って側枠23、垂木25が複数並設され、側枠23、垂木25の間にパネル26が支持された屋外構造物であって、パネル26において側枠23、垂木25の間に位置する部分が緩衝材50を介して梁12に支持されている。
【選択図】図5
特許請求の範囲
【請求項1】
支柱に支持された第1の横材の上面に前記第1の横材に交差する方向に沿って第2の横材が複数並設され、前記第2の横材の間に屋根材が支持された屋外構造物であって、
前記屋根材において前記第2の横材の間に位置する部分が緩衝材を介して前記第1の横材に支持されていることを特徴とする屋外構造物。
続きを表示(約 370 文字)
【請求項2】
前記緩衝材と前記第1の横材との間にスペーサが介在されていることを特徴とする請求項1に記載の屋外構造物。
【請求項3】
前記スペーサは、前記第2の横材の間にわたる長さを有した上方スペーサ部材と、前記上方スペーサ部材及び前記第1の横材の間に配設した下方スペーサ部材とを有して構成されていることを特徴とする請求項2に記載の屋外構造物。
【請求項4】
前記第2の横材の間には、相互間を連結する状態で第3の横材が設けられていることを特徴とする請求項3に記載の屋外構造物。
【請求項5】
前記第1の横材の上面と前記下方スペーサ部材との間には前記第1の横材に対する前記下方スペーサ部材の取付位置を規定する位置決め機構が設けられていることを特徴とする請求項3に記載の屋外構造物。
発明の詳細な説明
【技術分野】
【0001】
本発明は、カーポート等の屋外構造物に関するもので、支柱に支持された梁等の第1の横材の上面に側枠や垂木等の第2の横材が並設され、第2の横材の間にパネル等の屋根材が支持された屋外構造物に関する。
続きを表示(約 1,900 文字)
【背景技術】
【0002】
梁の上面に並設された垂木の間にパネルが支持された屋外構造物では、垂木の間に中桟を設けるとともに、中桟の上面に緩衝材を配設し、緩衝材をパネルの下面に当接させることによってパネルを支持するようにしたものが提供されている(例えば、特許文献1参照)。
【先行技術文献】
【特許文献】
【0003】
特開2010-242437号公報
【発明の概要】
【発明が解決しようとする課題】
【0004】
ところで、上述の屋外構造物では、上方を見上げた場合に垂木の間にパネルとは異材の中桟が見えることになる。このため、梁の上方となる部分に重なるように中桟を設ければ、視認可能となる中桟の数が減少するため外観品質の点で有利となる。しかしながら、梁と垂木との連結部分には、両者を連結するためのブラケットやネジが設けられている。従って、梁の上方部において垂木の間に中桟を設ける場合には、梁の上面から離隔した位置に配置する必要がある。
【0005】
上述の特許文献1では、垂木の上方部に段部を設け、この段部に中桟を載置することによって梁の上面から離隔するようにしている。これにより、梁の上方に中桟を設けることで外観品質の向上を図ることが可能である。しかしながら、垂木の断面形状が複雑となり、製造コストの点で不利となる。なお、連結具を用いて中桟と垂木との間を連結する方法も考えられる。しかしながら、連結具を用いる場合には、取り扱う部品点数が増えることに起因して新たな問題を招来する懸念がある。
【0006】
本発明は、上記実情に鑑みて、製造コストが増える事態や部品点数が増える事態を招来することなく外観品質の向上を図ることのできる屋外構造物を提供することを目的とする。
【課題を解決するための手段】
【0007】
上記目的を達成するため、本発明に係る屋外構造物は、支柱に支持された第1の横材の上面に前記第1の横材に交差する方向に沿って第2の横材が複数並設され、前記第2の横材の間に屋根材が支持された屋外構造物であって、前記屋根材において前記第2の横材の間に位置する部分が緩衝材を介して前記第1の横材に支持されていることを特徴とする。
【発明の効果】
【0008】
本発明によれば、緩衝材を介して屋根材を第1の横材に支持させるようにしているため、第2の横材として複雑な断面形状を有したものを適用することなく下から見上げた場合に露出する異材を減少することが可能となる。従って、製造コストが増える事態や部品点数が増える事態を招来することなく外観品質の向上を図ることができるようになる。
【図面の簡単な説明】
【0009】
本発明の実施の形態である屋外構造物の側面図である。
図1に示した屋外構造物の後面図である。
図1に示した屋外構造物の平面図である。
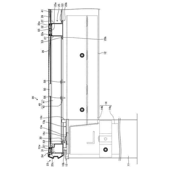
図1に示した屋外構造物を拡大した縦断面側面図である。
図1に示した屋外構造物を拡大した要部縦断面後面図である。
図5の要部拡大図である。
図1に示した屋外構造物の要部拡大平面図である。
図1に示した屋外構造物に適用するキャップを示すもので、(a)は平面図、(b)は内側面図、(c)は後面図、(d)は外側面図、(e)は縦断面図である。
図1に示した屋外構造物の要部を示すもので、(a)は支柱の上端にキャップを取り付ける以前の分解斜視図、(b)は支柱の上方に枠材を取り付ける以前の分解斜視図である。
図1に示した屋外構造物の要部を示すもので、(a)は梁に下方スペース部材を取り付ける以前の分解斜視図、(b)は梁に下方スペース部材を配置した状態を前方側から見た斜視図、(c)は梁に下方スペース部材を配置した状態を後方側から見た斜視図である。
【発明を実施するための形態】
【0010】
以下、添付図面を参照しながら本発明に係る屋外構造物の好適な実施の形態について詳細に説明する。
図1~図7は、本発明の実施の形態である屋外構造物を示すものである。ここで例示する屋外構造物は、外形が長方形で、平坦な駐車スペースを設置対象とするカーポートであり、後方フレーム10A、前方フレーム10B、屋根体20を備えて構成してある。2つのフレーム10A,10Bは、それぞれ左右の支柱11の上端部間に梁(第1の横材)12を架設することによって構成したもので、駐車スペースの後縁側となる位置及び前縁側となる位置に設けてある。
(【0011】以降は省略されています)
この特許をJ-PlatPat(特許庁公式サイト)で参照する
関連特許
個人
接合構造
9日前
個人
タッチミー
8日前
個人
屋台
26日前
個人
野良猫ハウス
1か月前
個人
フェンス
1か月前
個人
転落防止用手摺
1か月前
積水樹脂株式会社
柵体
1か月前
個人
筋交自動設定装置
16日前
個人
居住車両用駐車場
1か月前
個人
ベンリナアングル
8日前
ニチハ株式会社
建築板
1か月前
個人
熱抵抗多層断熱建材
1か月前
個人
柵
2か月前
個人
補強部材
1か月前
鹿島建設株式会社
壁体
1か月前
個人
身体用シェルター
16日前
成友建設株式会社
建物
1か月前
個人
身体用シェルター
16日前
三協立山株式会社
構造体
16日前
三協立山株式会社
構造体
16日前
個人
可搬型供養墓
14日前
株式会社熊谷組
吊り治具
13日前
三協立山株式会社
構造体
16日前
三協立山株式会社
構造体
16日前
三協立山株式会社
構造体
16日前
三協立山株式会社
構造体
16日前
株式会社熊谷組
床構成材
6日前
イワブチ株式会社
組立柱
1か月前
株式会社熊谷組
木質材料
26日前
インターマン株式会社
天井構造
2か月前
アイジー工業株式会社
スターター
16日前
株式会社NejiLaw
継手構造
1か月前
日鉄建材株式会社
屋根構造
1か月前
株式会社エフコンサルタント
面材
16日前
鹿島建設株式会社
接合構造
2か月前
株式会社エフコンサルタント
面材
16日前
続きを見る
他の特許を見る