TOP
|
特許
|
意匠
|
商標
特許ウォッチ
Twitter
他の特許を見る
10個以上の画像は省略されています。
公開番号
2025025703
公報種別
公開特許公報(A)
公開日
2025-02-21
出願番号
2023130752
出願日
2023-08-10
発明の名称
水中作業用パワーアシストスーツ駆動装置、およびパワーアシストスーツシステム
出願人
北日本海事興業株式会社
,
学校法人法政大学
,
有限会社共和海事工業所
代理人
個人
主分類
B25J
11/00 20060101AFI20250214BHJP(手工具;可搬型動力工具;手工具用の柄;作業場設備;マニプレータ)
要約
【課題】防波堤基礎部に投入する捨石の敷き均し作業など、水中における重量物運搬に適したパワーアシストスーツの駆動技術を提供すること。
【解決手段】空気圧人工筋肉方式の水中作業用パワーアシストスーツを駆動するための装置であって、パワーアシストスーツ駆動用として送気ホースAHから分岐された圧縮空気を減圧するレギュレータ1と、レギュレータ1により減圧された圧縮空気のパワーアシストスーツへの供給を制御する制御部3と、制御部3を構成する少なくとも一部の要素を収容する防水性かつ耐圧性の容器8とからなる水中作業用パワーアシストスーツ駆動装置とする。レギュレータ1は、水圧の感知に基づき送気する圧縮空気の圧力を自動的に一定に調整する、ダイアフラム方式にて形成する。
【選択図】図1
特許請求の範囲
【請求項1】
空気圧人工筋肉方式の水中作業用パワーアシストスーツを駆動するための装置であって、
パワーアシストスーツ駆動用として送気ホースから分岐された圧縮空気を減圧するレギュレータと、
該レギュレータにより減圧された圧縮空気のパワーアシストスーツへの供給を制御する制御部と、
該制御部を構成する少なくとも一部の要素を収容する防水性かつ耐圧性の容器とからなることを特徴とする、
水中作業用パワーアシストスーツ駆動装置。
続きを表示(約 1,000 文字)
【請求項2】
前記レギュレータは、水圧の感知に基づき送気する圧縮空気の圧力を自動的に一定に調整する方式にて形成されていることを特徴とする、請求項1に記載の水中作業用パワーアシストスーツ駆動装置。
【請求項3】
前記レギュレータは、送気する圧縮空気の圧力をパワーアシストスーツ装着者が任意で調整できる任意調整手段を備えていることを特徴とする、請求項2に記載の水中作業用パワーアシストスーツ駆動装置。
【請求項4】
前記制御部は、
前記容器内に収容されている電磁弁制御部、ならびにその他の駆動用もしくは制御用の機器からなる自余機器一式と、
該電磁弁制御部による制御を受ける電磁弁ユニットと、
該電磁弁ユニットを機能させる指令に係る指令入力部とからなり、
該電磁弁ユニットは、パワーアシストスーツ駆動用の圧縮空気の吸気、給気および排気を制御する
ことを特徴とする、請求項2に記載の水中作業用パワーアシストスーツ駆動装置。
【請求項5】
前記電磁弁ユニットは該容器外に設けられていることを特徴とする、請求項4に記載の水中作業用パワーアシストスーツ駆動装置。
【請求項6】
前記電磁弁ユニットはモールド処理により防水処理されていることを特徴とする、請求項5に記載の水中作業用パワーアシストスーツ駆動装置。
【請求項7】
前記制御部は、空気圧人工筋肉の駆動について、駆動指令後駆動開始までの時間の設定可能に形成されていることを特徴とする、請求項4、5のいずれかに記載の水中作業用パワーアシストスーツ駆動装置。
【請求項8】
前記容器は本パワーアシストスーツ装着者が装着可能に形成されていることを特徴とする、請求項4、5のいずれかに記載の水中作業用パワーアシストスーツ駆動装置。
【請求項9】
前記指令入力部は該装着者が手許にて入力可能に形成されていることを特徴とする、請求項4、5のいずれかに記載の水中作業用パワーアシストスーツ駆動装置。
【請求項10】
前記指令入力部は該装着者の手許での入力以外の入力方式によることを特徴とする、請求項4、5のいずれかに記載の水中作業用パワーアシストスーツ駆動装置。
(【請求項11】以降は省略されています)
発明の詳細な説明
【技術分野】
【0001】
本発明は水中作業用パワーアシストスーツ駆動装置、およびパワーアシストスーツシステムに係り、特に、水中作業を行う者の身体にかかる負担を効果的に軽減することのできる技術に関するものである。
続きを表示(約 2,700 文字)
【背景技術】
【0002】
潜水士が携わる種々の水中での業務の中でも、代表的な作業といえるのが、防波堤基礎部に投入する捨て石の敷き均し作業である。これは、潜水士が30~300kg/個程度の石を抱きかかえて移動させたり、転がしたりしながら、基礎石の面が平らになるようにする作業である。この作業では、潜水士の肘に大きな負荷が掛かり、繰り返し疲労することが分かっている。
【0003】
作業者の身体的負担を軽減するための技術としては、従来パワーアシストスーツ(PAS)が提供され、特許出願等もなされている。たとえば後掲特許文献1には、装着者の腰部に対する大腿部の揺動角度範囲を適切に制限して身体的負荷を軽減するパワーアシストスーツとして、腰周りに装着される装具、装具と装着者の大腿部とに装着されて装着者の腰部―大腿部間の動作を支援する従動プーリ付きのアシスト部、およびアシストトルクを発生させる動力部を有し、従動プーリには、大腿装着部に接続するアームと、腰部に対する大腿部の揺動範囲であるアームの揺動範囲を規制するストッパ機構が設けられる、という構成が開示されている。
【0004】
また、特許文献2には、農作業に適したパワーアシストスーツとして、装着者の背中に沿って装着されるループ状の線状部材からなる弾性部、一端が弾性部に取り付けられて装着者の肩部に巻回される一対の肩ベルト、一端が弾性部に取り付けられて装着者の下肢に巻回される一対の脚ベルト、および装着者の腰部に弾性部が接触するよう腰部を巻回する腰ベルトからなり、線状部材が装着者の動作による荷重では伸長し難い部材からなる構成が開示されている。これにより、装着者の前屈動作、側屈動作、捻り方向の動作等さまざまな動作に対してアシスト効果を発揮するとしている。
【先行技術文献】
【特許文献】
【0005】
特開2020-93310号公報「パワーアシストスーツ」
特開2021-145711号公報「農業用アシストスーツ」
【発明の概要】
【発明が解決しようとする課題】
【0006】
このように、作業者の身体的負担を軽減するための技術としてパワーアシストスーツは有効であるが、防波堤基礎部に投入する捨て石の敷き均し作業における肘への負荷の軽減等のような、水中作業に適したパワーアシストスーツは未だに提供されていない。そこで本発明が解決しようとする課題は、水中作業に適したパワーアシストスーツ、およびそれを実現するために必要な駆動装置を提供することである。
【課題を解決するための手段】
【0007】
本願発明者は上記課題を掲げ、特に捨て石の敷き均し作業における肘への負荷軽減を目標に掲げて研究開発を行った。その結果、下記の成果を得た。
成果1:パワーアシストスーツは外骨格型とし、固いフレーム等を配置し、肘に助力を行う構造とすること。
成果2:パワーアシストスーツの駆動装置としての防水耐圧容器、空気供給用分圧レギュレータ、および水中スイッチの開発。
成果3:特に防水耐圧容器は、電源スイッチの制御回路、マイクロコンピュータ、およびマイクロバッテリーを収納して、水深30mまで潜水可能な仕様を開発。
成果4:また空気供給用分圧レギュレータは、船上から潜水士用に送気される1MPaの空気を分岐して0.5MPa程度に減圧し、人工筋肉に送気可能で、水圧を自動的に感知し送気する空気圧を一定に保持可能な仕様を開発。
【0008】
これらの成果が得られたことにより上記課題を解決できる確かな見通しが得られ、これに基づいて本発明を完成するに至った。すなわち、上記課題を解決するための手段として本願で特許請求される発明、もしくは少なくとも開示される発明は、以下の通りである。
【0009】
〔1〕 空気圧人工筋肉方式の水中作業用パワーアシストスーツを駆動するための装置であって、パワーアシストスーツ駆動用として送気ホースから分岐された圧縮空気を減圧するレギュレータと、該レギュレータにより減圧された圧縮空気のパワーアシストスーツへの供給を制御する制御部と、該制御部を構成する少なくとも一部の要素を収容する防水性かつ耐圧性の容器とからなることを特徴とする、水中作業用パワーアシストスーツ駆動装置。
〔2〕 前記レギュレータは、水圧の感知に基づき送気する圧縮空気の圧力を自動的に一定に調整する方式にて形成されていることを特徴とする、〔1〕に記載の水中作業用パワーアシストスーツ駆動装置。
〔3〕 前記レギュレータは、送気する圧縮空気の圧力をパワーアシストスーツ装着者が任意で調整できる任意調整手段を備えていることを特徴とする、〔2〕に記載の水中作業用パワーアシストスーツ駆動装置。
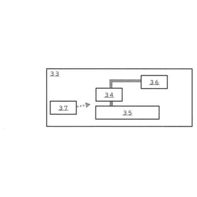
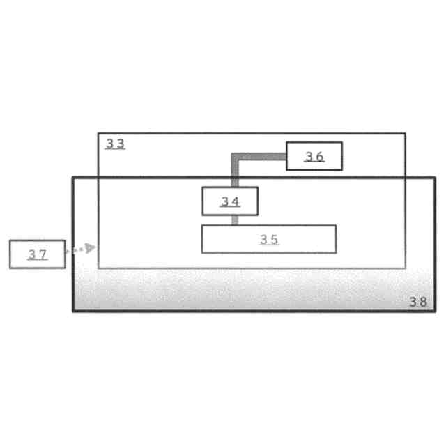
〔4〕 前記制御部は、前記容器内に収容されている電磁弁制御部、ならびにその他の駆動用もしくは制御用の機器からなる自余機器一式と、該電磁弁制御部による制御を受ける電磁弁ユニットと、該電磁弁ユニットを機能させる指令に係る指令入力部とからなり、該電磁弁ユニットは、パワーアシストスーツ駆動用の圧縮空気の吸気、給気および排気を制御することを特徴とする、〔2〕に記載の水中作業用パワーアシストスーツ駆動装置。
【0010】
〔5〕 前記電磁弁ユニットは該容器外に設けられていることを特徴とする、〔4〕に記載の水中作業用パワーアシストスーツ駆動装置。
〔6〕 前記電磁弁ユニットはモールド処理により防水処理されていることを特徴とする、〔5〕に記載の水中作業用パワーアシストスーツ駆動装置。
〔7〕 前記制御部は、空気圧人工筋肉の駆動について、駆動指令後駆動開始までの時間の設定可能に形成されていることを特徴とする、〔4〕、〔5〕のいずれかに記載の水中作業用パワーアシストスーツ駆動装置。
〔8〕 前記容器は本パワーアシストスーツ装着者が装着可能に形成されていることを特徴とする、〔4〕、〔5〕のいずれかに記載の水中作業用パワーアシストスーツ駆動装置。
〔9〕 前記指令入力部は該装着者が手許にて入力可能に形成されていることを特徴とする、〔4〕、〔5〕のいずれかに記載の水中作業用パワーアシストスーツ駆動装置。
(【0011】以降は省略されています)
この特許をJ-PlatPat(特許庁公式サイト)で参照する
関連特許
個人
固定補助具
1か月前
個人
折りたたみ工具
25日前
川崎重工業株式会社
ロボット
2日前
株式会社三協システム
製函機
23日前
株式会社三協システム
移載装置
22日前
CKD株式会社
把持装置
24日前
株式会社不二越
ロボット
1日前
株式会社竹中工務店
補助セット
1日前
株式会社不二越
ロボットシステム
1か月前
株式会社不二越
ロボット操作装置
1か月前
太陽パーツ株式会社
アシストスーツ
25日前
株式会社ミクロブ
把持装置
24日前
SMC株式会社
着脱装置
23日前
日本精工株式会社
締結用工具
1か月前
ARMA株式会社
ジョイントフレーム
1か月前
トヨタ自動車株式会社
カプラ接続治具
1か月前
株式会社不二越
移動ロボットシステム
4日前
株式会社不二越
ロボットシステム
25日前
株式会社不二越
エッジ仕上げ装置
14日前
株式会社不二越
ロボットシステム
22日前
本田技研工業株式会社
装置
7日前
積水ハウス株式会社
フィルム除去具
1か月前
株式会社不二越
垂直多関節ロボット
15日前
トヨタ自動車株式会社
歩行ロボット
28日前
ダイハツ工業株式会社
移載治具
1か月前
大和ハウス工業株式会社
ねじ回転工具
23日前
ライオン株式会社
移載システム
16日前
アネックスツール株式会社
ドライバービット
今日
シンフォニアテクノロジー株式会社
搬送装置
4日前
株式会社不二越
ロボットシステム
1か月前
ワールド技研株式会社
ロボットセル装置
1日前
セイコーエプソン株式会社
ロボット
1か月前
NTN株式会社
ハンド
2日前
セイコーエプソン株式会社
ロボット
1か月前
シヤチハタ株式会社
マーキング装置
28日前
倉敷紡績株式会社
ハンドおよびコネクタ接続方法
14日前
続きを見る
他の特許を見る