TOP
|
特許
|
意匠
|
商標
特許ウォッチ
Twitter
他の特許を見る
10個以上の画像は省略されています。
公開番号
2025139815
公報種別
公開特許公報(A)
公開日
2025-09-29
出願番号
2024038859
出願日
2024-03-13
発明の名称
分岐トンネル施工用の発進設備と、分岐トンネル施工用の掘進機の発進方法
出願人
大成建設株式会社
,
機動建設工業株式会社
代理人
個人
,
個人
主分類
E21D
9/06 20060101AFI20250919BHJP(地中もしくは岩石の削孔;採鉱)
要約
【課題】既設トンネルの内部から分岐トンネルを施工するに際し、既設トンネルの内部で掘進機を運搬し、地盤内に発進させるまでの一連の作業の効率化を図ることのできる、分岐トンネル施工用の発進設備と、分岐トンネル施工用の掘進機の発進方法を提供する。
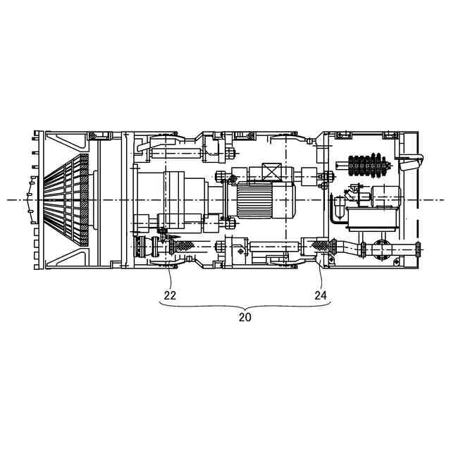
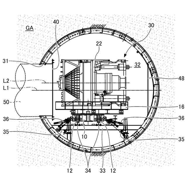
【解決手段】既設トンネル30の側面からその軸方向に交差する分岐トンネル50を施工するための掘進機20を発進させる、分岐トンネル施工用の発進設備90であり、軌条34と、軌条34に沿って走行する運搬台車10と、運搬台車10から上方に突設する回動軸14に対して、回動自在に搭載されている回動架台16とを有し、掘進機20が回動架台16に搭載され、軌条34に沿って運搬台車10が分岐トンネル施工位置32まで移動し、分岐トンネル50の施工の際の掘進機20の掘進方向に掘進機20が正対するように回動架台16が回動される。
【選択図】図3A
特許請求の範囲
【請求項1】
既設トンネルの内部において、該既設トンネルの側面から、該既設トンネルの軸方向に交差する分岐トンネルを施工するための掘進機を発進させる、分岐トンネル施工用の発進設備であって、
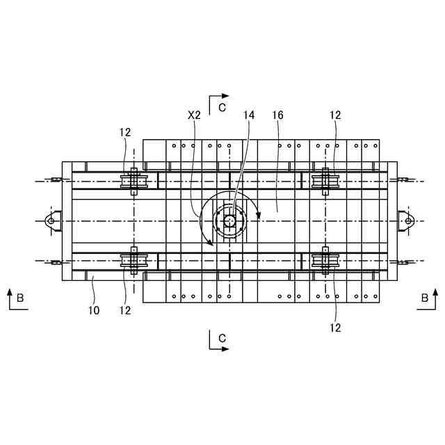
前記既設トンネルの内部に敷設されている軌条と、
前記軌条に沿って走行する運搬台車と、
前記運搬台車から上方に突設する回動軸に対して、回動自在に搭載されている、回動架台とを有し、
前記掘進機が前記回動架台に搭載され、前記軌条に沿って前記運搬台車が分岐トンネル施工位置まで移動し、前記分岐トンネルの施工の際の該掘進機の掘進方向に該掘進機が正対するように該回動架台が回動されることを特徴とする、分岐トンネル施工用の発進設備。
続きを表示(約 1,900 文字)
【請求項2】
前記回動架台が、前記掘進機の発進架台を兼用することを特徴とする、請求項1に記載の分岐トンネル施工用の発進設備。
【請求項3】
前記既設トンネルのうち、前記回動架台の下方には該回動架台を昇降するジャッキが設けられており、
前記掘進機を搭載した前記回動架台が回動して該掘進機の掘進方向に該掘進機が正対された後、前記ジャッキが該回動架台をジャッキアップし、前記運搬台車が取り除かれ、高さ調整部材が設置され、該掘進機を搭載した該回動架台がジャッキダウンされて高さ調整部材の上に載置された際に、該掘進機の中心レベルが、前記既設トンネルにおける発進用坑口の中心レベルに位置合わせされることを特徴とする、請求項1又は2に記載の分岐トンネル施工用の発進設備。
【請求項4】
前記回動架台の上に、搭載されている前記掘進機を掘進方向と掘進方向後方にスライド移動させる仮ジャッキが設けられており、
前記掘進機を搭載した前記回動架台が回動して該掘進機の掘進方向に該掘進機が正対された後、前記掘進機が掘進方向後方にスライドされ、前記既設トンネルにおける発進用坑口の周囲にエントランスパッキンが設けられるようになっていることを特徴とする、請求項3に記載の分岐トンネル施工用の発進設備。
【請求項5】
前記既設トンネルの内部に反力架台が設けられており、
前記反力架台に反力を取って前記掘進機を掘進方向に押し出す、元押しジャッキが設けられていることを特徴とする、請求項4に記載の分岐トンネル施工用の発進設備。
【請求項6】
前記既設トンネルの内部において、地盤内に押し出された前記掘進機のバッキング防止手段とローリング防止手段が設けられていることを特徴とする、請求項5に記載の分岐トンネル施工用の発進設備。
【請求項7】
既設トンネルの内部から掘進機を地盤に発進させて、該既設トンネルの軸方向に交差する分岐トンネルを施工する、分岐トンネル施工用の掘進機の発進方法であって、
運搬台車から上方に突設する回動軸に対して回動自在に搭載される回動架台の上に、前記掘進機を搭載し、前記既設トンネルの内部に敷設されている軌条に沿って、該運搬台車を分岐トンネル施工位置まで移動させる、移動工程と、
前記分岐トンネルの施工の際の前記掘進機の掘進方向に該掘進機が正対するように前記回動架台を回動させて該回動架台を該掘進機の発進架台とする、回動工程と、
少なくとも前記掘進機を地盤内に押し出す、押し出し工程とを有することを特徴とする、分岐トンネル施工用の掘進機の発進方法。
【請求項8】
前記既設トンネルのうち、前記回動架台の下方には該回動架台を昇降するジャッキを設けておき、
前記回動工程と前記押し出し工程の間に、運搬台車撤去工程をさらに有し、
前記運搬台車撤去工程は、
前記ジャッキにて該回動架台をジャッキアップし、前記運搬台車を取り除き、高さ調整部材を設置し、該掘進機を搭載した該回動架台をジャッキダウンして高さ調整部材の上に載置して、該掘進機の中心レベルを前記既設トンネルにおける発進用坑口の中心レベルに位置合わせすることを特徴とする、請求項7に記載の分岐トンネル施工用の掘進機の発進方法。
【請求項9】
前記運搬台車撤去工程と前記押し出し工程の間に、鏡切り工程をさらに有し、
前記回動架台の上に、搭載されている前記掘進機を掘進方向と掘進方向後方にスライド移動させる仮ジャッキを設け、
前記掘進機を掘進方向後方にスライドさせ、前記既設トンネルにおける発進用坑口の周囲にエントランスパッキンが設けるとともに鏡切りを行い、
前記掘進機を前記発進用坑口へ移動させることを特徴とする、請求項8に記載の分岐トンネル施工用の掘進機の発進方法。
【請求項10】
前記掘進機は、掘削設備を前方に備えている前胴と、後胴とを備え、
前記前胴に対して、前記移動工程と前記回動工程と前記運搬台車撤去工程と前記押し出し工程を実施し、次いで、前記後胴に対して、前記移動工程と前記回動工程と前記運搬台車撤去工程を実施し、前記前胴と該後胴を接続した後、該前胴と該後胴に対して前記押し出し工程を実施し、前記掘進機に後続する複数のトンネル函体に対して順次、前記移動工程と前記回動工程と前記運搬台車撤去工程と前記押し出し工程を実施することを特徴とする、請求項9に記載の分岐トンネル施工用の掘進機の発進方法。
発明の詳細な説明
【技術分野】
【0001】
本発明は、分岐トンネル施工用の発進設備と、分岐トンネル施工用の掘進機の発進方法に関する。
続きを表示(約 1,900 文字)
【背景技術】
【0002】
既設のトンネル坑内からシールド工法や推進工法で適用される掘進機(もしくは推進機で、以下、「掘進機」という)を発進させて分岐トンネルを施工する場合、所定の分岐トンネル施工位置(掘進機の発進位置)まで掘進機を運搬台車にて運搬し、掘進機を荷揚げし、受け台を設置し、掘進機を運搬台車から受け台に盛替え、鏡切りを行い、元押しジャッキで押し出して掘進機を発進させるといった様々な作業を要し、掘進機が地盤内に掘進するまでの各作業を効率的に行うことが大きな課題となっている。
【0003】
ここで、特許文献1には、副トンネル坑の構築方法が提案されている。この構築方法は、主トンネル坑内より分岐シールドを発進させて主トンネル坑からつながった副トンネル坑を構築した後、分岐シールドを再使用するべく回収するための副トンネル坑の構築方法である。
分岐シールドを、カッタ及びその駆動部を一体に設けた内殻と、その内殻を収容するとともに周方向に分割可能に形成された外殻とを備えて構成し、分岐シールドが目的の到達部へ到達した後、内殻を外殻から取り外すとともに、内殻を、外殻及び構築した副トンネル坑を通して主トンネル坑内に回収し、外殻を周方向に分割するとともに、分割した外殻を副トンネル坑を通して主トンネル坑内に回収する方法である。
【先行技術文献】
【特許文献】
【0004】
特開2017-2473号公報
【発明の概要】
【発明が解決しようとする課題】
【0005】
特許文献1に記載される副トンネル坑の構築方法によれば、到達位置に十分な回収スペースが確保できない場合や、分岐シールドの前方に回収作業の邪魔となる既設構造物がある場合でも分岐シールドを回収できるとしているが、既設トンネルの内部から分岐トンネルを施工するに際し、既設トンネルの内部で掘進機を運搬し、地盤内に発進させるまでの一連の作業を効率化させる手段を開示するものではない。
【0006】
本発明は、既設トンネルの内部から分岐トンネルを施工するに際し、既設トンネルの内部で掘進機を運搬し、地盤内に発進させるまでの一連の作業の効率化を図ることのできる、分岐トンネル施工用の発進設備と、分岐トンネル施工用の掘進機の発進方法を提供することを目的としている。
【課題を解決するための手段】
【0007】
前記目的を達成すべく、本発明による分岐トンネル施工用の発進設備の一態様は、
既設トンネルの内部において、該既設トンネルの側面から、該既設トンネルの軸方向に交差する分岐トンネルを施工するための掘進機を発進させる、分岐トンネル施工用の発進設備であって、
前記既設トンネルの内部に敷設されている軌条と、
前記軌条に沿って走行する運搬台車と、
前記運搬台車から上方に突設する回動軸に対して、回動自在に搭載されている、回動架台とを有し、
前記掘進機が前記回動架台に搭載され、前記軌条に沿って前記運搬台車が分岐トンネル施工位置まで移動し、前記分岐トンネルの施工の際の該掘進機の掘進方向に該掘進機が正対するように該回動架台が回動されることを特徴とする。
【0008】
本態様によれば、既設トンネルの内部に敷設されている軌条に沿って走行する運搬台車から上方に突設する回動軸に対して、回動架台が回動自在に搭載され、掘進機が回動架台に搭載されて分岐トンネル施工位置まで移動し、分岐トンネルの施工の際の掘進機の掘進方向に掘進機が正対するように回動架台が回動されることにより、分岐トンネル施工位置まで掘進機を移動させた後に、掘進機を荷揚げや荷卸しすることなく、回動架台の回動によって掘進機を掘進方向へ正対させて発進準備を完了することができるため、既設トンネルの内部で掘進機を運搬し、地盤内に発進させるまでの一連の作業の効率化を図ることができる。
【0009】
また、本発明による分岐トンネル施工用の発進設備の他の態様において、
前記回動架台が、前記掘進機の発進架台を兼用することを特徴とする。
【0010】
本態様によれば、回動架台が掘進機の発進架台を兼用することにより、運搬されてきた掘進機の盛替えを不要にできることから、掘進機の運搬から姿勢変更、地盤内への発進までの一連の作業の効率化を図ることができる。
(【0011】以降は省略されています)
この特許をJ-PlatPat(特許庁公式サイト)で参照する
関連特許
大成建設株式会社
新設構造物
1か月前
大成建設株式会社
シール機構
2か月前
大成建設株式会社
木質複合構造
13日前
大成建設株式会社
摩擦制振ダンパー
7日前
大成建設株式会社
ペレット製造装置
今日
大成建設株式会社
気体貯蔵放出材料
29日前
大成建設株式会社
床版接合部の設計方法
3日前
大成建設株式会社
杭の施工方法および杭
3日前
大成建設株式会社
浮体式基礎の製作方法
1か月前
大成建設株式会社
推定装置および推定方法
1か月前
大成建設株式会社
推定装置および推定方法
1か月前
大成建設株式会社
建物の健全性評価システム
1か月前
大成建設株式会社
炭酸カルシウムの製造方法
1か月前
大成建設株式会社
浚渫用施設および浚渫方法
22日前
大成建設株式会社
無線給電システム及び移動体
27日前
大成建設株式会社
建築物風騒音の簡易評価方法
2か月前
大成建設株式会社
地震時要救助者位置推定システム
1か月前
大成建設株式会社
試料採取装置および特性評価方法
1か月前
大成建設株式会社
到達立坑における掘進機の回収方法
3日前
大成建設株式会社
切羽観察システム及び切羽観察方法
2か月前
大成建設株式会社
汚泥処理方法および汚泥処理システム
1か月前
地中空間開発株式会社
トンネル掘削機
1か月前
大成建設株式会社
水槽構造物および水槽構造物の施工方法
22日前
大成建設株式会社
シールド工事用充填材、及びシールド工法
1か月前
大成建設株式会社
シールド到達構造およびシールド到達方法
22日前
大成建設株式会社
静的コーン試験装置と静的コーン試験方法
1か月前
大成建設株式会社
吊荷向き制御システムおよびブレード設置方法
14日前
大成建設株式会社
浮体式基礎の製作方法及び洋上風車の製作方法
1か月前
大成建設株式会社
水中不分離性モルタル組成物、及び、その部材
22日前
大成建設株式会社
浮体式基礎の製作方法及び洋上風車の製作方法
1か月前
大成建設株式会社
ランドマーク、位置推定方法、およびプログラム
1か月前
大成建設株式会社
上面増厚床版の非破壊評価方法及び非破壊評価システム
今日
大成建設株式会社
コンクリート組成物、及び、コンクリート部材の製造方法
1か月前
大成建設株式会社
鋼管により形成される立坑の坑口補強構造と坑口補強方法
3日前
大成建設株式会社
作業環境監視システム及び作業環境監視システムの監視方法
今日
大成建設株式会社
土量計測システム、土量計測方法、初期化方法及び保護構造
2か月前
続きを見る
他の特許を見る