TOP
|
特許
|
意匠
|
商標
特許ウォッチ
Twitter
他の特許を見る
10個以上の画像は省略されています。
公開番号
2024134582
公報種別
公開特許公報(A)
公開日
2024-10-04
出願番号
2023044846
出願日
2023-03-22
発明の名称
湿度調節庫
出願人
ホシザキ株式会社
代理人
個人
,
個人
,
個人
主分類
A21C
13/00 20060101AFI20240927BHJP(ベイキング;生地製造または加工の機械あるいは設備;ベイキングの生地)
要約
【課題】水を噴射する水噴射口と空気を噴射する空気噴射口とを有する2流体式のスプレイノズルから水を霧状に噴霧して収納庫内の湿度を調節可能とした湿度調節庫において、簡易な構造によって空気噴射口の塵埃を取り除けるようにする。
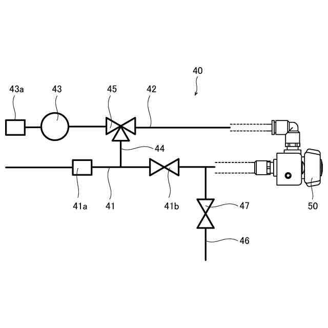
【解決手段】湿度調節庫10は、収納物を収納する収納庫12と、収納庫12内を加湿する加湿装置40とを備えている。加湿装置40は、水を噴射する水噴射口51aと空気を噴射する空気噴射口52aとを有する2流体式のスプレイノズル50と、スプレイノズル50に水を供給する給水管41と、スプレイノズル50に空気を供給する給気管42と、給気管42を介してスプレイノズル50に空気を送り出すエアポンプ43とを備え、給水管41の水を給気管42に導く導水管44と、給水管41から導水管44を通って給気管42に供給される水を通過及び遮断させる導水弁45とを設けた。
【選択図】図6
特許請求の範囲
【請求項1】
収納物を収納する収納庫と、
前記収納庫内を加湿する加湿装置とを備え、
前記加湿装置は、水を噴射する水噴射口と空気を噴射する空気噴射口とを有する2流体式のスプレイノズルと、前記スプレイノズルに水を供給する給水管と、前記スプレイノズルに空気を供給する給気管と、前記給気管を介して前記スプレイノズルに空気を送り出すエアポンプとを備えた湿度調節庫であって、
前記給水管の水を前記給気管に導く導水管と、
前記給水管から前記導水管を通って前記給気管に供給される水を通過及び遮断させる導水弁とを設けたことを特徴とする湿度調節庫。
続きを表示(約 160 文字)
【請求項2】
請求項1に記載の湿度調節庫において、
前記収納庫内の湿度を調節する湿度調節プログラムを備えており、
前記湿度調節プログラムを実行していないときに前記給水管から前記導水管を通って前記給気管に供給される水を通過させるように前記導水弁を開放するように制御したことを特徴とする湿度調節庫。
発明の詳細な説明
【技術分野】
【0001】
本発明は、水を噴射する水噴射口と空気を噴射する空気噴射口とを有する2流体式のスプレイノズルから水を霧状に噴霧することで、収納庫内の湿度を調節可能とする湿度調節庫に関する。
続きを表示(約 2,700 文字)
【背景技術】
【0002】
特許文献1には、パン生地の解凍、熟成及び発酵を行う貯蔵庫の発明が開示されている。この貯蔵庫は、パン生地を貯蔵可能な貯蔵室と、貯蔵室を冷却する冷却装置と、貯蔵室内を加熱する加熱装置と、貯蔵室内を加湿する加湿装置と、貯蔵室内の空気を循環させる循環ファンとを備えている。この貯蔵庫においては、貯蔵室内は冷却装置または加熱装置の作動によって温度調節されるように制御されるとともに、冷却装置と加湿装置とを作動させることによって湿度調節されるように制御されている。この貯蔵庫の加湿装置は、水を霧状に噴霧する2流体ノズルであるスプレイノズルと、給水源からスプレイノズルに水を供給する給水管と、スプレイノズルに空気を供給する給気管と、給気管を介してスプレイノズルに空気を加圧状態で送るエアポンプとを備えている。
【0003】
スプレイノズルは筒体を二重に配設したものであり、内側の筒体の先端部に水の噴射口が設けられており、内側の筒体と外側の筒体との間には隙間よりなる空気の噴射口が設けられている。スプレイノズルから水を霧状に噴霧するときには、給水管に介装した給水弁を開放するとともにエアポンプを作動させており、スプレイノズルの水の噴射口から水が噴射されるとともに空気の噴射口から空気が噴射され、スプレイノズルの前方で水が霧状に噴霧される。スプレイノズルの空気の噴射口に塵埃が詰まると空気を噴射できなくなり、スプレイノズルの前方で水が霧状にならないおそれがある。このため、この貯蔵庫では、水を噴射することなく空気を噴射させるようにして、空気の噴射口に詰まった塵埃を取り除くようにしている。
【先行技術文献】
【特許文献】
【0004】
特開2020-026913号公報
【発明の概要】
【発明が解決しようとする課題】
【0005】
特許文献1の貯蔵庫(湿度調節庫)においては、スプレイノズルの空気の噴射口に詰まった塵埃を取り除くために、水を噴射することなく空気を噴射させるようにして、空気の噴射口に詰まった塵埃を取り除くようにしている。スプレイノズルの空気の噴射口に詰まった塵埃を取り除くために、エアポンプを作動させてスプレイノズルの空気の噴射口から空気を噴射させて塵埃を取り除くようにしているが、エアポンプによって十分な圧力を付与できず、空気の噴射口に詰まった塵埃を取り除くことができないことがあった。高圧のエアポンプを用いるようにすれば、空気の噴射口に詰まった塵埃を取り除くことができるようになるが、高圧のエアポンプは大型であるので貯蔵庫の機械室に配置できなかったり、機械室に配置できるようにしても貯蔵庫が大型化する問題がある。本発明は、水を噴射する水噴射口と空気を噴射する空気噴射口とを有する2流体式のスプレイノズルから水を霧状に噴霧して収納庫内の湿度を調節可能とした湿度調節庫において、簡易な構造によって空気噴射口の塵埃を取り除けるようにすることを目的とする。
【課題を解決するための手段】
【0006】
本発明は上記課題を解決するため、収納物を収納する収納庫と、収納庫内を加湿する加湿装置とを備え、加湿装置は、水を噴射する水噴射口と空気を噴射する空気噴射口とを有する2流体式のスプレイノズルと、スプレイノズルに水を供給する給水管と、スプレイノズルに空気を供給する給気管と、給気管を介してスプレイノズルに空気を送り出すエアポンプとを備えた湿度調節庫であって、給水管の水を給気管に導く導水管と、給水管から導水管を通って給気管に供給される水を通過及び遮断させる導水弁とを設けたことを特徴とする湿度調節庫を提供するものである。
【0007】
上記のように構成した湿度調節庫においては、給水管の水を給気管に導く導水管と、給水管から導水管を通って給気管に供給される水を通過及び遮断させる導水弁とを設けたので、導水弁を開放することで給水管の水を給気管に導くことにより、スプレイノズルの空気噴射口から水を噴射することができ、スプレイノズルの空気噴射口に詰まった塵埃を噴射される水によって取り除くことができる。このように、大型の高圧のエアポンプを用いることなく簡易な構造で、スプレイノズルの空気噴射口に詰まった塵埃を取り除くことができる。
【0008】
上記のように構成した湿度調節庫においては、収納庫内の湿度を調節する湿度調節プログラムを備えており、湿度調節プログラムを実行していないときに給水管から導水管を通って給気管に供給される水を通過させるように導水弁を開放するように制御するのが好ましい。湿度調節プログラムを実行していないときに給水管から導水管を通って給気管に供給される水を通過させるように導水弁を開放するように制御して、給水管の水を給気管に導くようにしているので、湿度調節プログラムによって収納庫内の湿度調節に影響を与えずに、スプレイノズルの空気噴射口に詰まった塵埃を取り除くことができる。
【図面の簡単な説明】
【0009】
本発明の湿度調節庫の一実施形態であるドウコンディショナーの正面図である。
図1の前部の左右方向に沿った縦断面図である。
A-A断面図である。
ドウコンディショナーの冷却装置、加熱装置及び加湿装置の概略図である。
B-B断面図である。
加湿装置の概略図である。
スプレイノズルの一部拡大断面図である。
制御装置を示すブロック図である。
導水管を給水弁より下流側から分岐させたときの加湿装置の概略図である。
給水管に導水弁を設けたときの加湿装置の概略図である。
導水管に導水弁を設けたときの加湿装置の概略図である。
1つの噴射口から水と空気とを噴射するスプレイノズルの一部拡大断面図である。
【発明を実施するための最良の形態】
【0010】
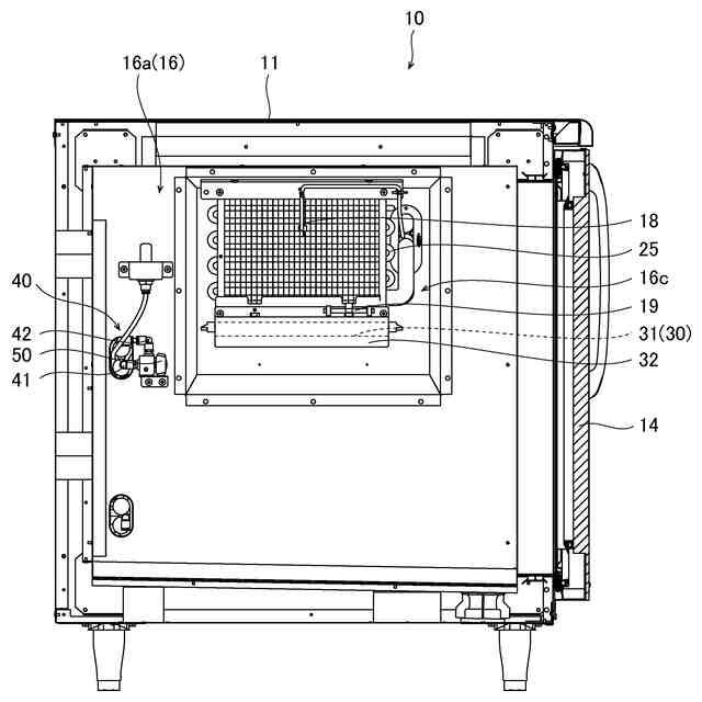
以下に、本発明の湿度調節庫の一実施形態をドウコンディショナーの実施形態により添付図面を参照して説明する。本発明のドウコンディショナー10は、パン生地を焼成する前に、フリーズ(冷凍)、リタード(冷蔵)、予熱及びホイロ(発酵)の各工程を順番に実行するものである。ドウコンディショナー10では、上記各工程を実行するときに各工程に応じた温度制御を行うとともに、予熱及びホイロ工程では温度制御に加えて湿度制御を行うようにしたものである。
(【0011】以降は省略されています)
この特許をJ-PlatPat(特許庁公式サイト)で参照する
関連特許
ホシザキ株式会社
製氷機
8日前
ホシザキ株式会社
冷却貯蔵庫
2日前
ホシザキ株式会社
冷却貯蔵庫
22日前
ホシザキ株式会社
天板付き機器
8日前
個人
調理用ガス窯
7日前
個人
装飾ケーキの製造方法
1か月前
不二製油株式会社
パン類の製造方法
1日前
学校法人甲子園学院
カヌレの製造法
3か月前
不二製油株式会社
食物繊維含有ペストリー類
1日前
日本製紙株式会社
菓子用スポンジ生地
4日前
日清食品ホールディングス株式会社
麺帯カット装置
5か月前
日清食品ホールディングス株式会社
麺帯の厚み測定装置
5か月前
個人
多重積層パイ生地を用いた焼き菓子の製造方法
2か月前
日清製粉株式会社
ベーカリー食品の製造方法
5か月前
日清製粉株式会社
ベーカリー食品の製造方法
5か月前
株式会社カネカ
冷凍用パン生地
5か月前
株式会社 不二商会
バウムクーヘン自動焼成システム
2か月前
株式会社オシキリ
焼成装置、焼成制御方法、プログラム
1か月前
地方独立行政法人 岩手県工業技術センター
菓子成型器
5か月前
株式会社ADEKA
練りパイ用添加剤
3か月前
三菱商事ライフサイエンス株式会社
多加水パンに添加できる発酵種
2か月前
株式会社ADEKA
冷凍パン生地改良剤
4か月前
松谷化学工業株式会社
パン類、及びパン類の伸びを増大させる方法
5か月前
日油株式会社
ピザ生地用改質剤
5か月前
日清食品ホールディングス株式会社
麺線群の蒸煮・搬送装置及び蒸煮方法
5か月前
日清製粉株式会社
ベーカリー食品用小麦粉
5か月前
日東富士製粉株式会社
フランスパンの製造方法
今日
株式会社デンソーウェーブ
バウムクーヘンの製造システム
4か月前
株式会社ミールケア
野菜パンの製造方法
23日前
株式会社ロッテ
食品生地の吐出ノズル及び吐出装置
1か月前
日清製粉株式会社
冷凍ベーカリー食品生地の製造方法
14日前
株式会社ADEKA
ベーカリー生地、及びベーカリー食品
5か月前
日清製粉株式会社
具材入り焼成ベーカリー食品の製造方法
1か月前
日本製紙株式会社
米粉を用いたパンケーキ生地、及びパンケーキの製造方法
2か月前
株式会社ニップン
クッキー用湯種の製造方法
2日前
学校法人 尚絅学園
イヌリンを発酵させて製造されたパン、パン生地およびパンの製造方法
5か月前
続きを見る
他の特許を見る