TOP
|
特許
|
意匠
|
商標
特許ウォッチ
Twitter
他の特許を見る
公開番号
2025142631
公報種別
公開特許公報(A)
公開日
2025-10-01
出願番号
2024042094
出願日
2024-03-18
発明の名称
エレベータ制御装置
出願人
富士電機株式会社
代理人
個人
,
個人
主分類
B66B
1/34 20060101AFI20250924BHJP(巻上装置;揚重装置;牽引装置)
要約
【課題】停電時の衝撃の緩和と無停電電源装置等の電源回路の小型化。
【解決手段】入力される交流電力を、エレベータの乗りかごを昇降する巻き上げ機の駆動用電力に変換するインバータと、前記交流電力の入力が停止すると、前記交流電力からバッテリに切り替える電源回路と、前記乗りかごを停止させるためのブレーキと、を備え、前記ブレーキの制御用電力を前記電源回路から常時供給する、エレベータ制御装置。
【選択図】図1
特許請求の範囲
【請求項1】
入力される交流電力を、エレベータの乗りかごを昇降する巻き上げ機の駆動用電力に変換するインバータと、
前記交流電力の入力が停止すると、前記交流電力からバッテリに切り替える電源回路と、
前記乗りかごを停止させるためのブレーキと、を備え、
前記ブレーキの制御用電力を前記電源回路から常時供給する、エレベータ制御装置。
続きを表示(約 480 文字)
【請求項2】
前記インバータを制御するインバータ制御回路を備え、
前記インバータ制御回路の電力を前記電源回路から常時供給する、請求項1に記載のエレベータ制御装置。
【請求項3】
前記インバータ制御回路は、回生運転中に前記交流電力の入力が停止すると、回生電力により前記乗りかごの減速制御を行い、乗りかごの移動速度が予め定めた所定速度まで低下したら前記ブレーキを解除から締結に切り替える、請求項2に記載のエレベータ制御装置。
【請求項4】
前記インバータ制御回路は、力行運転中に前記交流電力の入力が停止すると、前記インバータを力行運転から回生運転に切り替えて回生電力により前記乗りかごの減速制御を行い、乗りかごの移動速度が予め定めた所定速度まで低下したら前記ブレーキを解除から締結に切り替える、請求項2に記載のエレベータ制御装置。
【請求項5】
前記ブレーキを締結した後に、前記インバータに前記バッテリから電源を供給して前記乗りかごを目的位置に移動させる、請求項4に記載のエレベータ制御装置。
発明の詳細な説明
【技術分野】
【0001】
本開示は、エレベータ制御装置に関する。
続きを表示(約 1,500 文字)
【背景技術】
【0002】
停電が発生した場合、バッテリから供給される電力を利用してエレベータの運転を継続する技術が知られている(例えば、特許文献1,2参照)。
【先行技術文献】
【特許文献】
【0003】
特開2015-110463号公報
特開2017-171414号公報
【発明の概要】
【発明が解決しようとする課題】
【0004】
エレベータ制御装置へ給電する交流電源(商用電源)が停電等により喪失すると、ブレーキ自体への電源およびブレーキを制御するブレーキ制御装置への電源が喪失して強制ブレーキがかかることで、乗りかごの乗員への衝撃が大きくなるおそれがある。また、このとき、エレベータを昇降する巻き上げ機駆動用のインバータへの電源も喪失するため、エレベータが無制御状態となるおそれがある。
【0005】
そこで、近年では、バッテリを有する無停電電源装置等の電源回路を設け、停電時にエレベータ制御装置を無停電電源装置によりバックアップ運転することが行われる。その際、常時は交流電源(商用電源)からインバータやブレーキ制御装置等へ給電し、停電発生を検出すると商用給電から無停電電源装置のバッテリ給電に切り替えることが行われる。この場合、交流電源から無停電電源装置への切り替え時に、瞬間的に無給電状態が発生してブレーキおよびブレーキ制御装置への電源が喪失し、強制ブレーキがかかって乗りかごの乗員に比較的大きな衝撃を与えるおそれがある。
【0006】
一方、乗員への衝撃を緩和するため、停電の有無にかかわらずエレベータ制御装置への供給電力を常時、無停電電源装置から給電し、停電発生時に交流電源からバッテリへ無瞬断で切り替えることが考えられる。しかしながら、常時、無停電電源装置からエレベータ制御装置へ給電する場合、巻き上げ機を駆動するインバータにも常時給電することから、無停電電源装置等の電源回路が大型化、高コスト化するおそれがある。
【0007】
本開示は、停電時の衝撃の緩和と無停電電源装置等の電源回路の小型化を課題とする。
【課題を解決するための手段】
【0008】
本開示は、一態様として、
入力される交流電力を、エレベータの乗りかごを昇降する巻き上げ機の駆動用電力に変換するインバータと、
前記交流電力の入力が停止すると、前記交流電力からバッテリに切り替える電源回路と、
前記乗りかごを停止させるためのブレーキと、を備え、
前記ブレーキの制御用電力を前記電源回路から常時供給する、エレベータ制御装置を提供する。
【発明の効果】
【0009】
本開示によれば、停電時の衝撃の緩和と無停電電源装置等の電源回路の小型化が可能となる。
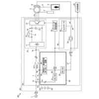
【図面の簡単な説明】
【0010】
第1実施形態に係るエレベータの一構成例を示す図である。
昇降圧コンバータの一構成例を示す図である。
インバータの回生運転中に停電が発生した場合の電源制御方法の一例を示すタイミングチャートである。
インバータの力行運転中に停電が発生した場合の電源制御方法の一例を示すタイミングチャートである。
第2実施形態に係るエレベータの一構成例を示す図である。
第3実施形態に係るエレベータの一構成例を示す図である。
第4実施形態に係るエレベータの一構成例を示す図である。
【発明を実施するための形態】
(【0011】以降は省略されています)
この特許をJ-PlatPat(特許庁公式サイト)で参照する
関連特許
富士電機株式会社
冷却装置
1か月前
富士電機株式会社
溶接装置
3日前
富士電機株式会社
整流装置
1か月前
富士電機株式会社
冷却装置
1か月前
富士電機株式会社
搬送機構
3日前
富士電機株式会社
冷却装置
6日前
富士電機株式会社
半導体装置
1か月前
富士電機株式会社
自動販売機
1か月前
富士電機株式会社
半導体装置
22日前
富士電機株式会社
半導体装置
21日前
富士電機株式会社
半導体装置
1か月前
富士電機株式会社
半導体装置
1か月前
富士電機株式会社
半導体装置
1か月前
富士電機株式会社
半導体装置
1か月前
富士電機株式会社
エンコーダ
今日
富士電機株式会社
半導体装置
1か月前
富士電機株式会社
半導体装置
1か月前
富士電機株式会社
回路遮断器
今日
富士電機株式会社
半導体装置
3日前
富士電機株式会社
半導体装置
1か月前
富士電機株式会社
分析システム
1か月前
富士電機株式会社
冷却システム
22日前
富士電機株式会社
ショーケース
1か月前
富士電機株式会社
硬貨処理装置
1か月前
富士電機株式会社
電力変換装置
1か月前
富士電機株式会社
半導体パッケージ
23日前
富士電機株式会社
電力変換システム
1か月前
富士電機株式会社
半導体モジュール
1か月前
富士電機株式会社
半導体モジュール
1か月前
富士電機株式会社
半導体パッケージ
1か月前
富士電機株式会社
半導体モジュール
1か月前
富士電機株式会社
半導体モジュール
1か月前
富士電機株式会社
電力変換システム
3日前
富士電機株式会社
半導体モジュール
1か月前
富士電機株式会社
エレベータ制御装置
1日前
富士電機株式会社
自動販売機システム
1か月前
続きを見る
他の特許を見る