TOP
|
特許
|
意匠
|
商標
特許ウォッチ
Twitter
他の特許を見る
公開番号
2025147351
公報種別
公開特許公報(A)
公開日
2025-10-07
出願番号
2024047561
出願日
2024-03-25
発明の名称
回転圧縮機
出願人
株式会社豊田自動織機
代理人
弁理士法人ぱてな
主分類
F04C
2/344 20060101AFI20250930BHJP(液体用容積形機械;液体または圧縮性流体用ポンプ)
要約
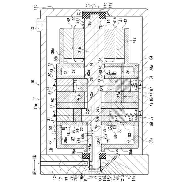
【課題】外部への振動伝達を効果的に抑制できる回転圧縮機を提供する。
【解決手段】シャフト20は、ハウジング10に支持された主軸部21と、主軸部21の中心軸線O1に対して偏心した偏心部26とを有する。回転体30は、中心軸線O1を回転軸線としてシャフト20に回転可能に支持されている。シャフト20にステータ41が固定され、ステータ41の外周側に配置されたロータ42に回転体30が固定されている。回転体30は、シリンダ31と、ベーン33とを有する。シリンダ31は、偏心部26の外周面と共に内部に作動室54を形成し、偏心部26の外周面に沿って回転する。ベーン33は、シリンダ31の回転に伴って作動室54に対して進退動し、作動室54を吸入室54aと圧縮室54bとに仕切る。シャフト20は防振材76、77を介してハウジング10に支持されている。
【選択図】図1
特許請求の範囲
【請求項1】
ハウジングと、
前記ハウジングに収容され、前記ハウジングに支持された主軸部と、前記主軸部の中心軸線に対して偏心した偏心部とを有するシャフトと、
前記ハウジング内に収容され、前記中心軸線を回転軸線として前記シャフトに対して回転可能に支持された回転体と、
前記ハウジング内に収容され、前記回転体を回転駆動させる駆動機構とを備え、
前記駆動機構は、前記シャフトに固定されたステータと、前記ステータの外周側に配置され、前記回転体が一体回転可能に固定されたロータとを有し、
前記回転体は、前記偏心部の外周面と共に内部に作動室を形成し、前記外周面に沿って回転するシリンダと、
前記シリンダの回転に伴って前記作動室に対して進退動することにより、冷媒が吸入される吸入室と冷媒を圧縮する圧縮室とに前記作動室を仕切るベーンとを有し、
前記シャフトは、前記シャフトから前記ハウジングへの振動伝達を抑える防振材を介して前記ハウジングに支持されていることを特徴とする回転圧縮機。
続きを表示(約 1,100 文字)
【請求項2】
前記シャフトの両端が前記防振材を介して前記ハウジングに支持されている請求項1に記載の回転圧縮機。
【請求項3】
前記防振材は、前記ハウジング内において前記吸入室と通じる吸入冷媒雰囲気に配置されている請求項1又は2に記載の回転圧縮機。
【請求項4】
前記回転体は、前記主軸部の外周側に配置されたカバー体を有し、
前記カバー体は、前記圧縮室と連通して前記圧縮室で圧縮された冷媒が吐出される吐出室を有し、
前記ハウジングは、外部と連通する吐出連絡口を有し、
前記シャフトは、前記吐出室と前記吐出連絡口とを連通させるシャフト内吐出通路を有し、
前記シャフト内吐出通路と前記吐出連絡口との接続部と、前記防振材との間に環状のシール部材が配置されている請求項3に記載の回転圧縮機。
【請求項5】
前記回転体は、前記主軸部の外周側に配置されたカバー体を有し、
前記カバー体は、前記圧縮室と連通して前記圧縮室で圧縮された冷媒が吐出される吐出室を有し、
前記ハウジングは、前記中心軸線と交差する方向に延びて外部と連通する吐出連絡口を有し、
前記シャフトは、前記吐出室と前記吐出連絡口とを連通させるシャフト内吐出通路を有し、
前記シャフト内吐出通路は、前記中心軸線の方向に延びた軸方向通路部と、前記中心軸線と交差する方向に延びて前記吐出室と前記軸方向通路部とを連通させる第1径方向通路部と、前記中心軸線と交差する方向に延びて前記吐出連絡口と前記軸方向通路部とを連通させる第2径方向通路部とを有し、
前記吐出連絡口と前記第2径方向通路部との接続部と、前記シャフトにおける前記接続部に近い方の端部との間には、前記シャフトの外周面に装着された環状のシール部材が配置され、
前記シャフトの両端部は、前記ハウジング内において前記吸入室と通じる吸入冷媒雰囲気とされている請求項2に記載の回転圧縮機。
【請求項6】
前記回転体は、前記主軸部の外周側に配置されたカバー体を有し、
前記カバー体は、前記圧縮室と連通して前記圧縮室で圧縮された冷媒が吐出される吐出室を有し、
前記ハウジングは、外部と連通する吐出連絡口を有し、
前記シャフトは、前記吐出室と前記吐出連絡口とを連通させるシャフト内吐出通路を有し、
前記シャフト内吐出通路は、前記中心軸線の方向に延びるとともに、前記シャフトの両端部に開口する開口端部を有し、
各前記開口端部の周囲には、各前記開口端部を囲む環状のシール部材が配置されている請求項2に記載の回転圧縮機。
発明の詳細な説明
【技術分野】
【0001】
本発明は回転圧縮機に関する。
続きを表示(約 1,000 文字)
【背景技術】
【0002】
特許文献1に従来の回転圧縮機(以下、単に圧縮機という。)が開示されている。この圧縮機は、ハウジング、駆動軸、駆動機構、シリンダ、ローラ、ベーン及び軸支部材を備えている。
【0003】
軸支部材は、ハウジングに固定されている。軸支部材には、シリンダが固定されている。また、軸支部材は、駆動軸を駆動軸線周りで回転可能に支持している。
【0004】
駆動軸は、主軸部と、主軸部の中心軸線に対して偏心した偏心軸部とを有している。駆動軸は、主軸部の中心軸線を駆動軸線として、駆動軸線周りに回転する。
【0005】
駆動機構は、電動モータであり、駆動軸を回転させる。電動モータは、ハウジングに固定された筒状のステータと、ステータの内周側に配置された筒状のロータとを有している。ロータは、駆動軸の主軸部に固定されている。
【0006】
ローラは、円筒状をなし、駆動軸の偏心軸部に固定されている。シリンダは、駆動軸線と直交する断面形状が真円をなす内周面を有している。シリンダの内周面の中心軸線は、主軸部の中心軸線と同軸である。シリンダは、ローラの外周面と共に内部に作動室を形成している。ローラの外周面の一部はシリンダの内周面に接触している。
【0007】
ローラの外周面には、ローラの径方向に延びる板状のベーンが一体に形成されている。ベーンは、シリンダの内周面に設けられたベーン収容孔に摺動可能に収容されている。
【0008】
この圧縮機では、駆動軸が駆動軸線周りに回転することで、ローラがシリンダの内周面に沿って回転する。このローラの回転に伴ってベーンが作動室に対して進退動し、作動室が吸入室と圧縮室とに仕切られる。こうして、この圧縮機では、吸入室に冷媒が吸入されつつ、圧縮室で冷媒が圧縮される。
【先行技術文献】
【特許文献】
【0009】
特開2019-39418号公報
【発明の概要】
【発明が解決しようとする課題】
【0010】
ところで、圧縮機を例えば車両に搭載する場合、圧縮機で発生する振動は、車両に伝達されて車室内の騒音の原因となる。そのため、圧縮機の静粛性を高めて、圧縮機から車両への振動伝達を抑制することが要求される。特に、近年、電気自動車の普及により、これまで以上にその要求が高まっている。
(【0011】以降は省略されています)
特許ウォッチbot のツイートを見る
この特許をJ-PlatPat(特許庁公式サイト)で参照する
関連特許
株式会社豊田自動織機
排気管
6日前
株式会社豊田自動織機
回転圧縮機
2日前
株式会社豊田自動織機
回転圧縮機
2日前
株式会社豊田自動織機
電力変換器
2日前
株式会社豊田自動織機
自動運転車両
6日前
株式会社豊田自動織機
荷役制御装置
6日前
株式会社豊田自動織機
パレット検知装置
8日前
株式会社豊田自動織機
段積みケース構造
6日前
株式会社豊田自動織機
エンジン式産業車両
今日
株式会社豊田自動織機
スクロール型圧縮機
1日前
株式会社豊田自動織機
スクロール型圧縮機
6日前
株式会社豊田自動織機
回転電機のステータ
6日前
株式会社豊田自動織機
燃料電池モジュール
10日前
株式会社豊田自動織機
スクロール型圧縮機
1日前
株式会社豊田自動織機
スクロール型圧縮機
今日
株式会社豊田自動織機
屋外自動運転システム
6日前
株式会社豊田自動織機
車両のリアシート構造
1日前
株式会社豊田自動織機
両回転式スクロール型圧縮機
1日前
株式会社豊田自動織機
ローリングピストン型圧縮機
今日
トヨタ自動車株式会社
電池
2日前
株式会社豊田自動織機
両回転式スクロール型圧縮機
1日前
株式会社豊田自動織機
両回転式スクロール型圧縮機
1日前
株式会社豊田自動織機
両回転式スクロール型圧縮機
1日前
株式会社豊田自動織機
両回転式スクロール型圧縮機
1日前
株式会社豊田自動織機
両回転式スクロール型圧縮機
1日前
株式会社豊田自動織機
両回転式スクロール型圧縮機
1日前
株式会社豊田自動織機
ローリングピストン型電動圧縮機
今日
豊田合成株式会社
車両用内装品
8日前
豊田合成株式会社
車両用内装品
8日前
豊田合成株式会社
車両用外装品
6日前
株式会社豊田自動織機
ローリングピストン型電動圧縮機
今日
株式会社豊田自動織機
ローリングピストン型電動圧縮機
今日
株式会社豊田自動織機
ローリングピストン型電動圧縮機
今日
株式会社豊田自動織機
ローリングピストン型電動圧縮機
今日
トヨタ自動車株式会社
二次電池
今日
トヨタ自動車株式会社
塗工装置
今日
続きを見る
他の特許を見る