TOP
|
特許
|
意匠
|
商標
特許ウォッチ
Twitter
他の特許を見る
公開番号
2025119513
公報種別
公開特許公報(A)
公開日
2025-08-14
出願番号
2024014447
出願日
2024-02-01
発明の名称
ステンシルプレートセット及びその配置構造
出願人
AWJ株式会社
代理人
個人
主分類
B05B
12/28 20180101AFI20250806BHJP(霧化または噴霧一般;液体または他の流動性材料の表面への適用一般)
要約
【目的】横書きや縦書きなどさまざまな表示形態が可能であって、なおかつマスキングの作業性を高めることが可能なステンシルプレートセットを提供する。
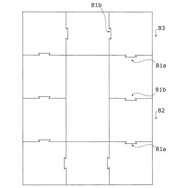
【構成】本発明に係るステンシルプレートセットは、ステンシルプレートとしての複数のマスキングプレート1で構成してあり、該マスキングプレートは8枚の標準プレート2及び4枚のコーナープレート3で構成してある。標準プレート2は図2に示すように、ほぼ正方形状であって互いに反対側となる2つの縁部のうち、一方に第1の凹凸としての凹凸4aが、該凹凸に面外方向から嵌合可能でかつ面内方向への離脱が拘束される形状をなす第2の凹凸としての凹凸4bが他方に形成してある。一方、コーナープレート3は、ほぼ正方形状であって互いに直交位置で隣り合う2つの縁部のうち、一方に凹凸4aが、他方に凹凸4bがそれぞれ形成してある。
【選択図】 図2
特許請求の範囲
【請求項1】
複数のステンシルプレートで構成されるとともに、該複数のステンシルプレートには、無開口のマスキングプレートが複数含まれるステンシルプレートセットにおいて、
前記複数のマスキングプレートを、ほぼ矩形状であって互いに反対側となる2つの縁部のうち、一方に第1の凹凸が、該第1の凹凸に面外方向から嵌合可能でかつ面内方向への離脱が拘束される形状をなす第2の凹凸が他方に形成されてなる標準プレートと、ほぼ矩形状であって互いに直交位置で隣り合う2つの縁部のうち、一方に前記第1の凹凸が、他方に前記第2の凹凸がそれぞれ形成されてなるコーナープレートとで構成したことを特徴とするステンシルプレートセット。
続きを表示(約 330 文字)
【請求項2】
前記複数のステンシルプレートに、文字、数字、記号、図形その他の転写イメージが開口として形成されてなる少なくとも1枚の転写プレートが含まれる請求項1記載のステンシルプレートセット。
【請求項3】
同一位置に載置されるとともにそれぞれが異なる色に対応した複数枚の転写プレートが前記少なくとも1枚の転写プレートに含まれる請求項2記載のステンシルプレートセット。
【請求項4】
請求項2又は請求項3記載のステンシルプレートセットの配置構造であって、前記マスキングプレートを全体として額縁状となるように配置するとともに、その内側領域に前記転写プレートを配置したことを特徴とするステンシルプレートセットの配置構造。
発明の詳細な説明
【技術分野】
【0001】
本発明は、建物や駐車場などで用いられるステンシルプレートセット及びその配置構造に関する。
続きを表示(約 1,200 文字)
【背景技術】
【0002】
建物内の床や壁、駐車場の路面などには、利用者に向けた案内や注意喚起などを目的としてさまざまな文字や数字あるいは記号が描かれるが、その際のツールとして、ステンシルプレートが広く用いられている。
【0003】
ステンシルプレートは、ステンシルテンプレート、吹付けプレート、型板などとも称されるものであって、転写したい文字や数字あるいは記号や図形が開口として金属板やプラスチック板に形成されており、所望の場所に載置した状態で霧状の塗料を吹き付ければ、その載置場所に文字等を簡単に転写できるようになっている。
【0004】
かかるステンシルプレートは、同じ文字や数字を繰り返し転写できるため、例えば工事現場の複数の作業エリアや可燃物設置エリアに「足元注意」あるいは「火気厳禁」といった表示を施す際には、そのつど描くよりも格段に作業性が高い。
【先行技術文献】
【特許文献】
【0005】
昭56-129199号公報
【発明の概要】
【発明が解決しようとする課題】
【0006】
しかしながら、上述したステンシルプレートを用いる際には、意図しない場所に塗料が吹き付けられるのを防止するため、ステンシルプレートの周囲にマスキングを施す必要があるところ、ステンシルプレートが所望位置からずれないように、あるいは複数のステンシルプレートが互いにずれないように留意しつつ、マスキングテープなどをステンシルプレートの周囲に貼っていかねばならないため、時間と手間がかかるという問題を生じていた。
【0007】
また、転写したい文字や数字あるいは記号や図形を複数色で構成したい場合、各色に対応した複数枚のステンシルプレートを、そのつど同じ位置に載置する必要があるが、その際は、位置合わせに時間がかかるという問題も生じる。
【0008】
加えて、複数色構成の場合、各色に対応したステンシルプレートを載置してはマスキングをして吹付けを行い、しかる後、マスキングを除去しつつ、ステンシルプレートを撤去するという作業を色数分だけ繰り返す必要があるため、上述したマスキング作業はさらに煩雑なものとなる。
【課題を解決するための手段】
【0009】
本発明は、上述した事情を考慮してなされたもので、複数枚のステンシルプレートの互いの位置ずれを防止しながら、マスキングの作業性を高めることが可能なステンシルプレートセット及びその配置構造を提供することを目的とする。
【0010】
また、本発明は、複数色構成を含む場合においても、複数枚のステンシルプレートの互いの位置ずれを防止しながら、マスキングの作業性を高めるとともに、各色に対応した複数のステンシルプレートを短時間に位置決めすることが可能なステンシルプレートセット及びその配置構造を提供することを目的とする。
(【0011】以降は省略されています)
この特許をJ-PlatPat(特許庁公式サイト)で参照する
関連特許
AWJ株式会社
ステンシルプレートセット及びその配置構造
2か月前
ベック株式会社
被膜形成方法
16日前
有限会社 芦屋ドレス
湯噴霧器
1日前
スズカファイン株式会社
多色性塗膜
24日前
ベック株式会社
装飾被膜の形成方法
2か月前
アイカ工業株式会社
塗料仕上げ工法
1か月前
トヨタ自動車株式会社
塗布装置
22日前
日本ライナー株式会社
塗装装置
1か月前
個人
スプレー缶高所対応携帯ホルダー
1か月前
能美防災株式会社
水噴霧ヘッド
20日前
株式会社カネカ
塗布装置
24日前
ヒット工業株式会社
マスキング具
2か月前
中外炉工業株式会社
塗工装置
2か月前
ブラザー工業株式会社
塗工装置
13日前
ブラザー工業株式会社
塗工装置
13日前
ブラザー工業株式会社
塗工装置
13日前
東レエンジニアリング株式会社
スリットダイ
16日前
東レエンジニアリング株式会社
粉体吐出装置
14日前
旭サナック株式会社
粉体塗装装置
1か月前
トリニティ工業株式会社
回転霧化式塗装機
20日前
三菱鉛筆株式会社
多液混合型塗布具
2か月前
積水ハウス株式会社
接着剤塗布装置
2か月前
ブラザー工業株式会社
静電塗工装置
13日前
個人
散水形態を変更可能な吐水装置
21日前
AWJ株式会社
ステンシルプレートセット
2か月前
株式会社トーモク
印刷装置および印刷方法
1か月前
Mipox株式会社
塗装物の製造方法
1か月前
株式会社吉野工業所
吐出器
2か月前
株式会社吉野工業所
吐出器
2か月前
株式会社吉野工業所
吐出器
2か月前
有限会社橋本漆芸
ガラス瓶の漆調塗装及び加飾
1か月前
鈴健興業株式会社
流体放出ユニット及び作業機械
2か月前
リンテック株式会社
塗工装置
13日前
芝浦機械株式会社
塗工装置
24日前
Mipox株式会社
機能性部材の製造方法
1か月前
アネスト岩田株式会社
静電噴霧装置
1か月前
続きを見る
他の特許を見る