TOP
|
特許
|
意匠
|
商標
特許ウォッチ
Twitter
他の特許を見る
公開番号
2025157977
公報種別
公開特許公報(A)
公開日
2025-10-16
出願番号
2024060380
出願日
2024-04-03
発明の名称
駆動伝達装置及び駆動伝達装置を備えた昇降装置
出願人
株式会社ダイフク
代理人
弁理士法人R&C
主分類
F16D
1/076 20060101AFI20251008BHJP(機械要素または単位;機械または装置の効果的機能を生じ維持するための一般的手段)
要約
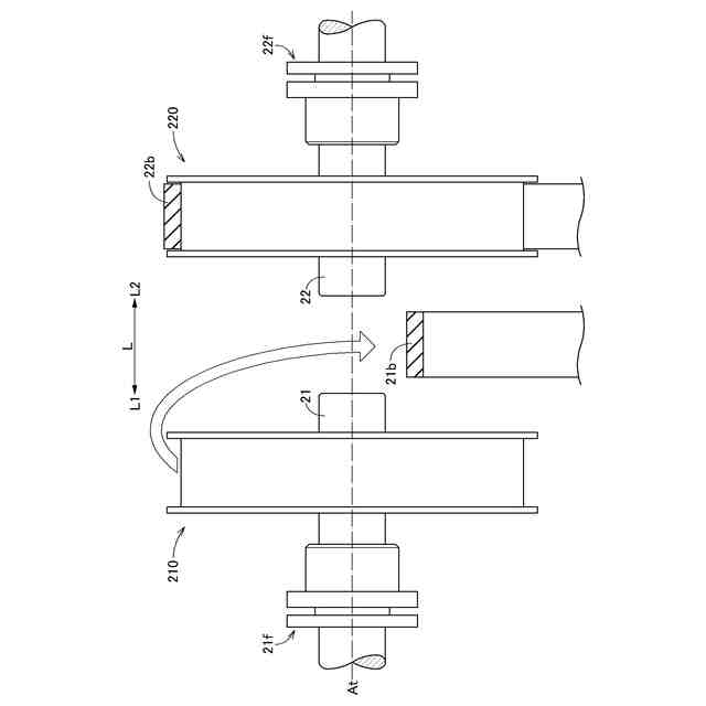
【課題】ベルト等の無端状の伝動部材を用いた駆動伝達装置において、当該伝動部材を挿通させるための隙間を空けた状態で同一軸心上に配置された2つの軸同士の連結を自由度高く行う。
【解決手段】駆動伝達装置2は、基準軸心As上に配置された基準軸20と、対象軸心At上に配置された第1対象軸21及び第2対象軸22と、第1対象軸21に取り付けられた第1回転体210と、第2対象軸22に取り付けられた第2回転体220と、第1回転体210に巻き掛けられた第1伝動部材21bと、第2回転体220に巻き掛けられた第2伝動部材22bと、軸継手23と、を備えている。第1対象軸21と第2対象軸22とは、軸方向Lに隙間を空けて配置され、第1回転体210と第2回転体220とは、軸方向Lに並ぶように対象軸心At上に配置されている。軸継手23は、第1回転体210と第2回転体220とに連結されている。
【選択図】図2
特許請求の範囲
【請求項1】
基準軸心上に配置された基準軸と、
前記基準軸心と平行な別軸心である対象軸心上に配置された第1対象軸及び第2対象軸と、
前記基準軸に取り付けられた第1基準回転体及び第2基準回転体と、
前記第1対象軸に取り付けられた第1回転体と、
前記第2対象軸に取り付けられた第2回転体と、
前記第1基準回転体と前記第1回転体とに巻き掛けられた無端状の第1伝動部材と、
前記第2基準回転体と前記第2回転体とに巻き掛けられた無端状の第2伝動部材と、
前記第1対象軸と前記第2対象軸とを連結するための軸継手と、
を備え、
前記基準軸心及び前記対象軸心に平行な方向を軸方向として、
前記第1対象軸と前記第2対象軸とは、前記軸方向に隙間を空けて配置され、
前記第1回転体と前記第2回転体とは、前記軸方向に並ぶように前記対象軸心上に配置され、
前記軸継手は、前記第1回転体と前記第2回転体とに連結されている、駆動伝達装置。
続きを表示(約 840 文字)
【請求項2】
前記軸方向における前記第2回転体に対して前記第1回転体が配置された側を軸方向第1側とし、その反対側を軸方向第2側として、
前記第1回転体における前記軸方向第2側の側面に、前記軸方向第1側へ窪むように形成された第1凹部が設けられ、
前記第2回転体における前記軸方向第1側の側面に、前記軸方向第2側へ窪むように形成された第2凹部が設けられ、
前記軸継手は、前記第1凹部及び前記第2凹部の双方に嵌合するように構成されている、請求項1に記載の駆動伝達装置。
【請求項3】
前記第1回転体は、第1固定機構により前記第1対象軸に固定され、
前記第2回転体は、第2固定機構により前記第2対象軸に固定され、
前記第1回転体は、前記第1固定機構による固定が解除された状態で前記第1対象軸に沿って前記軸方向に移動自在であり、
前記第2回転体は、前記第2固定機構による固定が解除された状態で前記第2対象軸に沿って前記軸方向に移動自在である、請求項1又は2に記載の駆動伝達装置。
【請求項4】
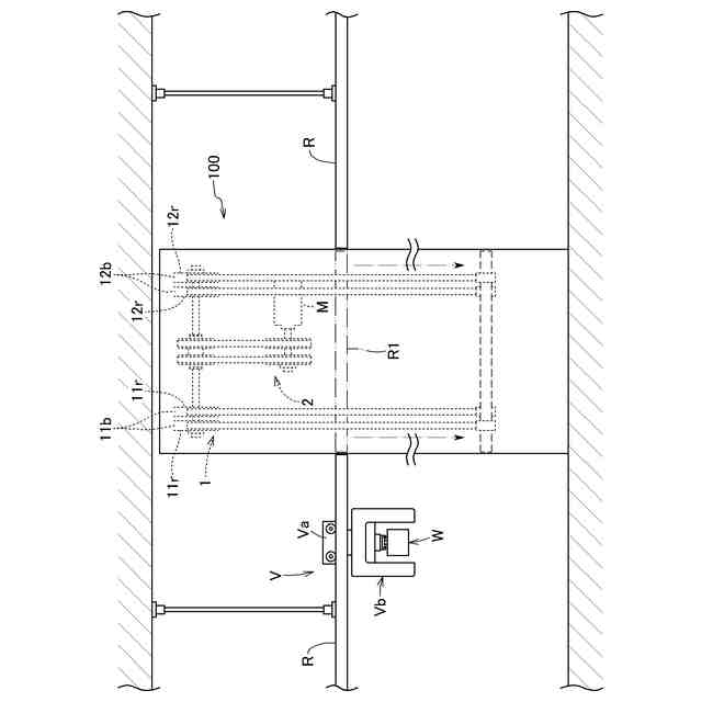
請求項1又は2に記載の駆動伝達装置を備えた昇降装置であって、
駆動源と、
前記駆動源によって駆動される昇降機構と、
前記昇降機構によって昇降される被昇降体と、
を備え、
前記昇降機構は、第1出力回転体と、第2出力回転体と、前記第1出力回転体に巻回されて巻き取り及び繰り出し自在に構成された第1被巻取部材と、前記第2出力回転体に巻回されて巻き取り及び繰り出し自在に構成された第2被巻取部材と、を備え、
前記第1被巻取部材と前記第2被巻取部材とは、前記被昇降体に対して互いに異なる箇所に連結され、
前記第1出力回転体は、前記第1対象軸と連動して回転するように連結され、
前記第2出力回転体は、前記第2対象軸と連動して回転するように連結されている、昇降装置。
発明の詳細な説明
【技術分野】
【0001】
本発明は、駆動伝達装置及び駆動伝達装置を備えた昇降装置に関する。
続きを表示(約 1,900 文字)
【背景技術】
【0002】
例えば、モータにより発生した駆動力を伝達する駆動伝達装置を利用したものとして、特開2004-067348号公報(特許文献1)には、プリント基板を搬送するための基板搬送装置が開示されている。以下、背景技術の説明において括弧内に示される符号は、特許文献1のものである。
【0003】
特許文献1に開示された発明において、搬送ベルト(13A,13B)を駆動する駆動用プーリ(14A,14B)は、1本のベルト駆動軸(20)により一体的に回転するように連結され、ベルト駆動軸(20)の回転により同一軸心上で同期して回転する構成となっている。
【0004】
ベルト駆動軸(20)は、同一軸心上において互いに隙間(25)を空けて配置された一対の駆動軸(20a,20b)を備えている。これらの駆動軸(20a,20b)は、軸継手(26)によって直接的に連結されている。軸継手(26)は、駆動軸(20a,20b)から取り外し可能である。軸継手(26)の取り外しによって表出した隙間(25)は、メンテナンス時などに搬送ベルト(13A)を基板搬送装置(1)から取り外す際に利用される。すなわち、搬送ベルト(13A)を隙間(25)に挿通させることで、搬送ベルト(13A)を基板搬送装置(1)から取り外すことができる。
【先行技術文献】
【特許文献】
【0005】
特開2004-067348号公報
【発明の概要】
【発明が解決しようとする課題】
【0006】
上述のように、一対の駆動軸(20a,20b)は、軸継手(26)によって直接的に連結される構成となっている。そのため特許文献1に開示された構成では、軸継手(26)のサイズが、駆動軸(20a,20b)のサイズや形状によって制約を受けることになり、ひいては、軸の連結構造の自由度が制限され易い。
【0007】
上記実状に鑑みて、ベルト等の無端状の伝動部材を用いた駆動伝達装置において、当該伝動部材を挿通させるための隙間を空けた状態で同一軸心上に配置された2つの軸同士の連結を自由度高く行うことができる技術の実現が望まれている。
【課題を解決するための手段】
【0008】
基準軸心上に配置された基準軸と、
前記基準軸心と平行な別軸心である対象軸心上に配置された第1対象軸及び第2対象軸と、
前記基準軸に取り付けられた第1基準回転体及び第2基準回転体と、
前記第1対象軸に取り付けられた第1回転体と、
前記第2対象軸に取り付けられた第2回転体と、
前記第1基準回転体と前記第1回転体とに巻き掛けられた無端状の第1伝動部材と、
前記第2基準回転体と前記第2回転体とに巻き掛けられた無端状の第2伝動部材と、
前記第1対象軸と前記第2対象軸とを連結するための軸継手と、
を備え、
前記基準軸心及び前記対象軸心に平行な方向を軸方向として、
前記第1対象軸と前記第2対象軸とは、前記軸方向に隙間を空けて配置され、
前記第1回転体と前記第2回転体とは、前記軸方向に並ぶように前記対象軸心上に配置され、
前記軸継手は、前記第1回転体と前記第2回転体とに連結されている。
【0009】
本構成によれば、第1対象軸と第2対象軸とが軸方向に隙間を空けて配置されているため、軸継手を取り外して第1回転体と第2回転体との間に隙間を形成することにより、第1伝動部材又は第2伝動部材を交換する場合に、第1回転体から取り外した第1伝動部材又は第2回転体から取り外した第2伝動部材を、第1対象軸と第2対象軸との隙間を通して容易に取り外すことができる。また本構成によれば、第1対象軸と第2対象軸とを直接的に連結するのではなく、第1回転体と第2回転体とを軸継手で連結することによって、第1対象軸と第2対象軸とを間接的に連結することができる。そのため、第1対象軸と第2対象軸とを連結する機能を担う軸継手について、第1対象軸及び第2対象軸のサイズや形状による制約を少なくすることができる。従って、本構成によれば、第1伝動部材又は第2伝動部材を挿通させるための隙間を空けた状態で同一軸心上に配置された第1対象軸と第2対象軸との連結を自由度高く行うことが可能となる。
【0010】
本開示に係る技術のさらなる特徴と利点は、図面を参照して記述する以下の例示的かつ非限定的な実施形態の説明によってより明確になるであろう。
【図面の簡単な説明】
(【0011】以降は省略されています)
この特許をJ-PlatPat(特許庁公式サイト)で参照する
関連特許
株式会社ダイフク
搬送車
21日前
株式会社ダイフク
洗車機
12日前
株式会社ダイフク
作業設備
21日前
株式会社ダイフク
搬送設備
1か月前
株式会社ダイフク
洗浄装置
1か月前
株式会社ダイフク
洗浄装置
1か月前
株式会社ダイフク
作業設備
1か月前
株式会社ダイフク
搬送設備
1か月前
株式会社ダイフク
作業設備
21日前
株式会社ダイフク
搬送設備
1か月前
株式会社ダイフク
作業設備
21日前
株式会社ダイフク
作業設備
21日前
株式会社ダイフク
作業設備
5日前
株式会社ダイフク
作業設備
21日前
株式会社ダイフク
作業設備
21日前
株式会社ダイフク
物品搬送設備
3日前
株式会社ダイフク
搬送システム
25日前
株式会社ダイフク
物品搬送設備
1か月前
株式会社ダイフク
物品搬送設備
1か月前
株式会社ダイフク
物品搬送設備
1か月前
株式会社ダイフク
自動倉庫システム
21日前
株式会社ダイフク
移動体清掃システム
1か月前
株式会社ダイフク
手荷物保管システム
1か月前
株式会社ダイフク
治具、および交換補助具
1か月前
株式会社ダイフク
物品搬送設備及び物品搬送設備の保守方法
3日前
株式会社ダイフク
駆動伝達装置及び駆動伝達装置を備えた昇降装置
4日前
台湾大福高科技設備股分有限公司
物体搬送システム
25日前
台湾大福高科技設備股分有限公司
物体搬送システム
21日前
株式会社ダイフク
物品仕分け設備
20日前
個人
留め具
6日前
個人
鍋虫ねじ
1か月前
個人
ホース保持具
6か月前
個人
回転伝達機構
2か月前
個人
紛体用仕切弁
1か月前
個人
トーションバー
6か月前
個人
差動歯車用歯形
3か月前
続きを見る
他の特許を見る